Postponed | Lot 28

Site off North River Road, Great Yarmouth, Norfolk NR30 1SG

Postponed

  • Residential Development
  • 27 Bedrooms
  • Tenure: Freehold

Call the team on 01603 505 100 for more information

Auction Date

Wed 08/02/2023

Auction Time

11:00

Auction Venue

Livestream Auction

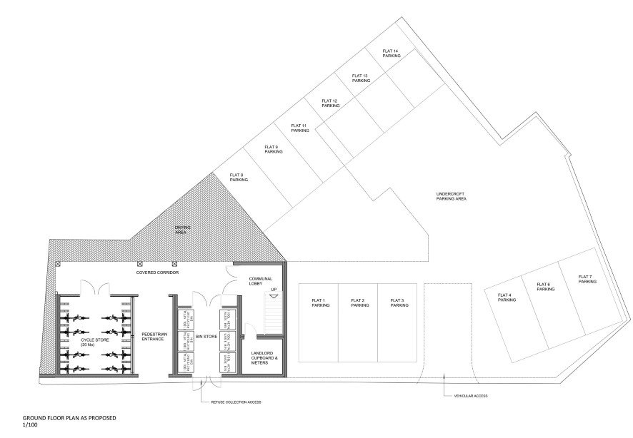
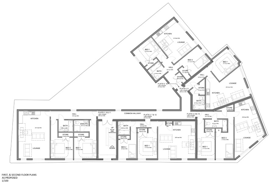
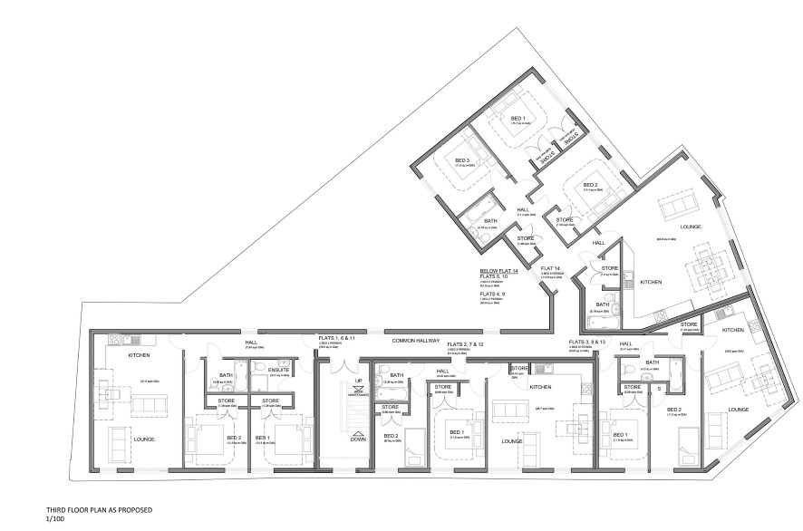
Residential development site with planning permission for 14 apartments overlooking the River Bure

A detached warehouse measuring 300 sq m / 3,228 sq ft with mezzanine and forecourt surfaced yard/parking area. The site has planning permission to demolish the existing building and develop a four storey apartment block consisting of 14 apartments (1 x 3 bedroom, 11 x 2 bedroom and 2 x 1 bedroom) with 12 parking spaces. The majority will have panoramic river views. Recent developments in the area include a Premier Inn and Brewers Fayre and terrace of eight luxury apartments to the opposite side of the river.

Tenure

Freehold

Planning

Full planning permission was granted by Great Yarmouth Borough Council on 9th April 2021 for demolition of warehouse and construction of residential building comprising fourteen apartments. Application number 06/21/0292/F. Further details and plans can be found on the public access website of Great Yarmouth Borough Council great-yarmouth.gov.uk/planning.

Proposed Accommodation

The architect's drawings provide for 14 well proportioned and good sized self contained apartments arranged over first, second and third floors. The development is to provide 12 car parking spaces in an under-croft at ground floor level and incorporating cycle and bin stores. Proposed gross internal floor areas range from approximately 500 sq ft for the 2 no. one bedroom apartments to 1,150 sq ft for the 1 no. three bedroom apartment.

Business Rates

The current Rateable Value is £8,500 although it would be removed from the list if development undertaken.

Services

Interested parties are requested to make their own enquiries to the relevant authorities as to the availability of services.

Local Authority

Great Yarmouth Borough Council

Solicitors

Norton Peskett (Great Yarmouth), Ref: Matthew Breeze, Tel: 01493 849225

Offered in association with

East Commercial

Important Notice to Prospective Buyers:

We draw your attention to the Special Conditions of Sale within the Legal Pack, referring to other charges in addition to the purchase price which may become payable. Such costs may include Search Fees, reimbursement of Sellers costs and Legal Fees, and Transfer Fees amongst others.

Additional Fees

Buyer's Premium - £900 inc VAT payable on exchange of contracts.

Administration Charge - 0.3% inc VAT of the purchase price, subject to a minimum of £1200 inc VAT, payable on exchange of contracts.

Disbursements - Please see the legal pack for any disbursements listed that may become payable by the purchaser on completion.

View Larger Map

Disclaimer: The map preview provided above is for general guidance only and may not accurately reflect the exact location or surrounding buildings. Prospective buyers and interested parties are strongly advised to independently verify the precise location and surroundings before bidding.