For Sale By Auction | 11:00, 08 February 2023 | Lot 74

22-23 Havelock Road, Great Yarmouth, Norfolk NR30 3HQ

Sold £105,000

  • Mixed Use
  • Tenure: Freehold

Call the team on 01603 505 100 for more information

Auction Date

Wed 08/02/2023

Auction Time

11:00

Auction Venue

Livestream Auction

Freehold two storey mixed use property in need of complete renovation

This vacant attached property comprises a ground floor Chinese / fish and chip shop with three bedroom accommodation above. It has not been used for over ten years and is now in a derelict state. It could be redeveloped, refurbished or extended subject to the necessary consents. The side covered yard gives the potential for off road parking. The property is located close to the town centre near a comprehensive range of services and amenities. An ideal project for a builder or developer.

Tenure

Freehold

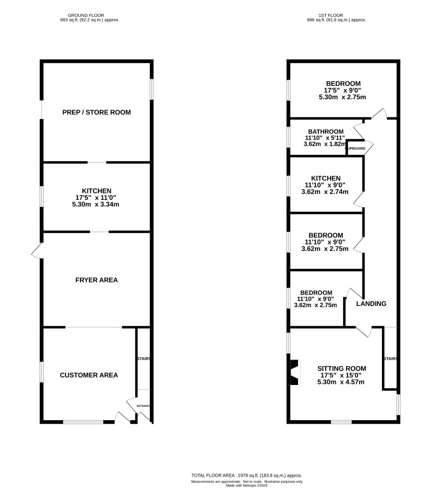
Ground floor

Shop: customer area, fryer area, kitchen, prep / store room

First floor

Flat: Landing, sitting room, three bedrooms, kitchen, bathroom

Outside

WC, side covered yard with potential for off road parking

Council Tax Band for no. 23

A

Viewings

Viewings are being arranged and the next are on Friday 3 and Saturday 4 February. Please contact the Norwich office to book an appointment.

Services

Interested parties are requested to make their own enquiries to the relevant authorities as to the availability of services.

Local Authority

Great Yarmouth Borough Council

Solicitors

Lawrence Stephens, Ref: Paul Marsh, Tel: +44 (0)20 3004 3988

Offered in association with

East Commercial

Important Notice to Prospective Buyers:

We draw your attention to the Special Conditions of Sale within the Legal Pack, referring to other charges in addition to the purchase price which may become payable. Such costs may include Search Fees, reimbursement of Sellers costs and Legal Fees, and Transfer Fees amongst others.

Additional Fees

Buyer's Premium - £900 inc VAT payable on exchange of contracts.

Administration Charge - 0.3% inc VAT of the purchase price, subject to a minimum of £1200 inc VAT, payable on exchange of contracts.

Disbursements - Please see the legal pack for any disbursements listed that may become payable by the purchaser on completion.

View Larger Map

Disclaimer: The map preview provided above is for general guidance only and may not accurately reflect the exact location or surrounding buildings. Prospective buyers and interested parties are strongly advised to independently verify the precise location and surroundings before bidding.