For Sale By Auction | 11:00, 08 February 2023 | Lot 10

177 Nelson Street, Norwich, Norfolk NR2 4DS

Sold After

  • Terraced House
  • 2 Bedrooms
  • Tenure: Freehold

Call the team on 01603 505 100 for more information

Auction Date

Wed 08/02/2023

Auction Time

11:00

Auction Venue

Livestream Auction

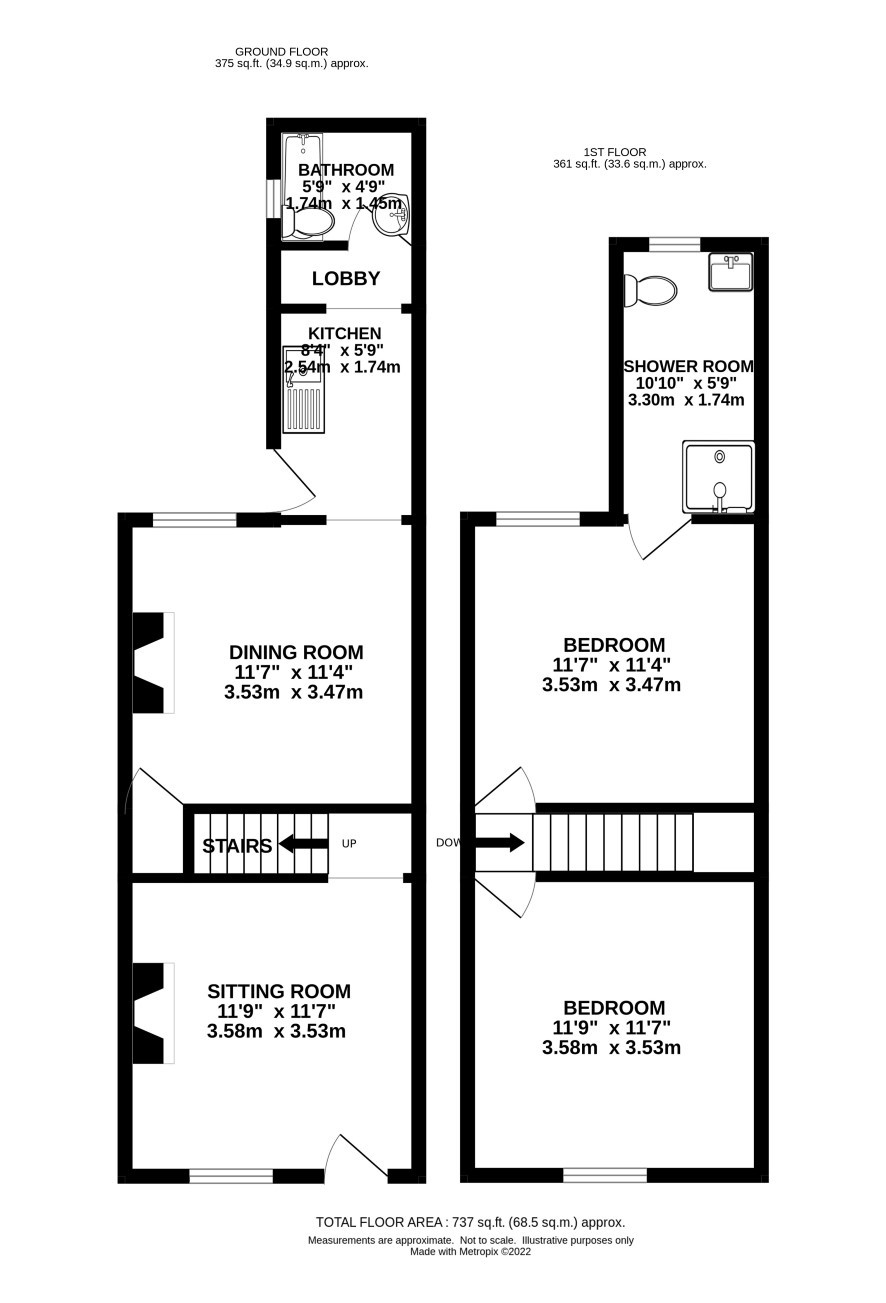
Well presented two bedroomed terraced house located to the west of the city. Ideal for owner occupier or investor.

A well presented two bedroom, mid terrace house located to the west of Norwich within walking distance to the City centre. Accommodation comprises sitting room, dining room, kitchen and bathroom to the ground floor. On the first floor there are two bedrooms off landing with bedroom two having an en-suite shower room. Outside there is a small, low maintenance front garden and bisected rear garden.

Tenure

Freehold

Ground Floor

Sitting room, dining room, kitchen, bathroom

First Floor

Two bedrooms, shower room

Outside

Front garden, bisected rear garden

Council Tax Band

B

Note

Vendor is retaining top part of rear garden - see Legal Pack

Viewing

Open Viewings have been scheduled for Monday 30 January and Thursday 2 February APPOINTMENT ESSENTIAL, please call our Norwich office to be allocated a time slot

Energy Efficiency Rating (EPC)

Current Rating D

Services

Interested parties are requested to make their own enquiries to the relevant authorities as to the availability of services.

Local Authority

Norwich City Council

Solicitors

George Watson Solicitors, Ref: Hayley George

Important Notice to Prospective Buyers:

We draw your attention to the Special Conditions of Sale within the Legal Pack, referring to other charges in addition to the purchase price which may become payable. Such costs may include Search Fees, reimbursement of Sellers costs and Legal Fees, and Transfer Fees amongst others.

Additional Fees

Administration Charge - 0.3% inc VAT of the purchase price, subject to a minimum of £1200 inc VAT, payable on exchange of contracts.

Disbursements - Please see the legal pack for any disbursements listed that may become payable by the purchaser on completion.

View Larger Map

Disclaimer: The map preview provided above is for general guidance only and may not accurately reflect the exact location or surrounding buildings. Prospective buyers and interested parties are strongly advised to independently verify the precise location and surroundings before bidding.