For Sale By Auction | 11:00, 08 February 2023 | Lot 68

Land adj to 22 Revesby Avenue, Boston, Lincolnshire PE21 8EP

Sold After

  • Land
  • 3 Bedrooms
  • Tenure: Freehold

Call the team on 01733 889833 for more information

Auction Date

Wed 08/02/2023

Auction Time

11:00

Auction Venue

Livestream Auction

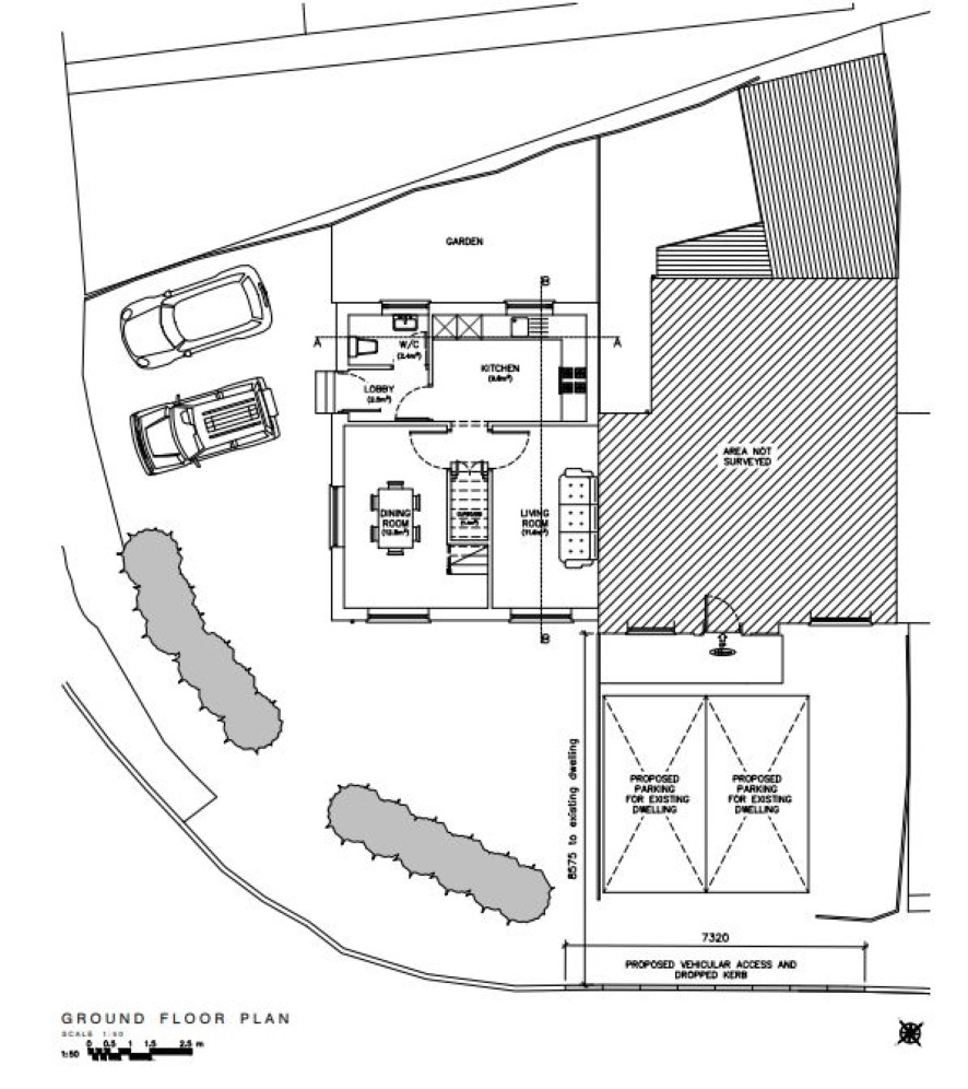
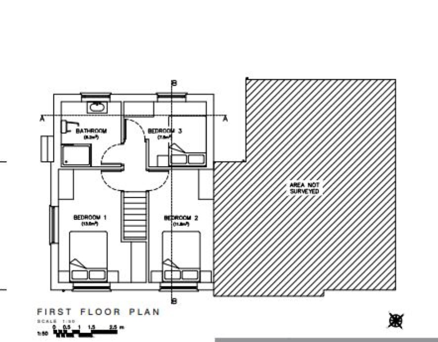
A single building plot with planning permission for an end terrace three bedroom house.

A building plot with planning permission for a three bedroom end of terrace house comprising two receptions, cloakroom W.C., kitchen with three bedrooms and a family bathroom on the first floor. Planning was granted by Boston Borough Council planning reference B/22/0392 in November 2022. Boston offers a rail link together with shopping and schooling facilities.

Tenure

Freehold

Proposed ground floor accommodation

Hall, lounge, dining room, kitchen and a ground floor w.c.

Proposed first floor accommodation

Three bedrooms and a bathroom.

Outside

Gardens to front side and rear.

Services

Interested parties are requested to make their own enquiries to the relevant authorities as to the availability of services.

Local Authority

Boston Borough Council

Solicitors

HS Lawyers, Ref: Asad Arif, Tel: 01733 703978

Important Notice to Prospective Buyers:

We draw your attention to the Special Conditions of Sale within the Legal Pack, referring to other charges in addition to the purchase price which may become payable. Such costs may include Search Fees, reimbursement of Sellers costs and Legal Fees, and Transfer Fees amongst others.

Additional Fees

Buyer's Premium - £900 inc VAT payable on exchange of contracts.

Administration Charge - 0.3% inc VAT of the purchase price, subject to a minimum of £1200 inc VAT, payable on exchange of contracts.

Disbursements - Please see the legal pack for any disbursements listed that may become payable by the purchaser on completion.

View Larger Map

Disclaimer: The map preview provided above is for general guidance only and may not accurately reflect the exact location or surrounding buildings. Prospective buyers and interested parties are strongly advised to independently verify the precise location and surroundings before bidding.