For Sale By Auction | 11:00, 08 February 2023 | Lot 59

1 Tintagel Court, Peterborough, Cambridgeshire PE3 6SP

Sold £259,000

  • Detached House
  • 4 Bedrooms
  • Tenure: Freehold

Call the team on 01733 889833 for more information

Auction Date

Wed 08/02/2023

Auction Time

11:00

Auction Venue

Livestream Auction

A detached four bedroom house offered with vacant possession in the Longthorpe conservation village.

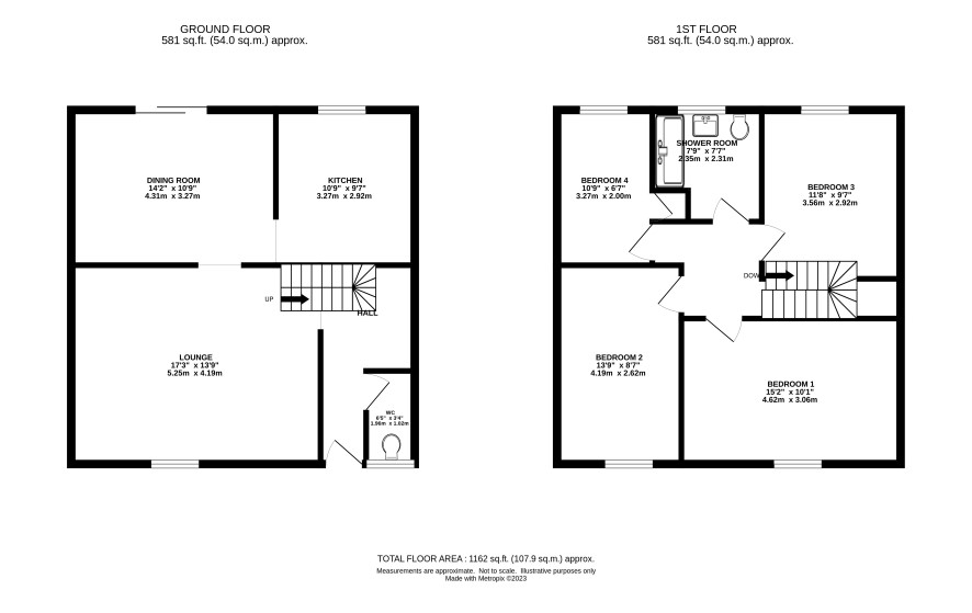
This detached four bedroom house is offered with vacant possession on the edge of Peterborough in the village of Longthorpe. The village offers a post office/general store and a primary school. A main line rail link into London Kings Cross can be found in the city. The accommodation includes two reception rooms, kitchen, ground floor w.c. and four bedrooms and a family shower room on the first floor. The property also offers a single garage and garden at the rear.

Tenure

Freehold

Ground floor

Hall, cloakroom w.c., lounge, dining room and a kitchen

First floor

Four bedrooms and a family shower room

Outside

Gardens to rear and a single garage

Council Tax Band

D

Energy Efficiency Rating (EPC)

Current Rating D

Services

Interested parties are requested to make their own enquiries to the relevant authorities as to the availability of services.

Local Authority

Peterborough City Council

Solicitors

Buckles, Grant House, Ref: Buckles, Tel: 01733 888 888

Important Notice to Prospective Buyers:

We draw your attention to the Special Conditions of Sale within the Legal Pack, referring to other charges in addition to the purchase price which may become payable. Such costs may include Search Fees, reimbursement of Sellers costs and Legal Fees, and Transfer Fees amongst others.

Additional Fees

Buyer's Premium - £900 inc VAT payable on exchange of contracts.

Administration Charge - 0.3% inc VAT of the purchase price, subject to a minimum of £1200 inc VAT, payable on exchange of contracts.

Disbursements - Please see the legal pack for any disbursements listed that may become payable by the purchaser on completion.

View Larger Map

Disclaimer: The map preview provided above is for general guidance only and may not accurately reflect the exact location or surrounding buildings. Prospective buyers and interested parties are strongly advised to independently verify the precise location and surroundings before bidding.