For Sale By Auction | 11:00, 08 February 2023 | Lot 82

212 High Street, Gorleston, Great Yarmouth, Norfolk NR31 6RR

Sold £96,000

  • Terraced House
  • 3 Bedrooms
  • Tenure: Freehold

Call the team on 01603 505 100 for more information

Auction Date

Wed 08/02/2023

Auction Time

11:00

Auction Venue

Livestream Auction

Three/four bedroom terrace house requiring improvement with pedestrian/vehicular access to the rear.

This terrace house was previously let and is now to be sold with vacant possession. The property benefits from gas fired central heating. Open plan living, kitchen and bathroom on the ground floor. On the first floor are two bedrooms off the landing and the further two bedrooms are accessed via bedroom two. The property now requires a programme of updating to realise its full potential. The property also has the benefit from vehicular/pedestrian right of way to the rear. This would appeal to an owner occupier or investor.

Tenure

Freehold

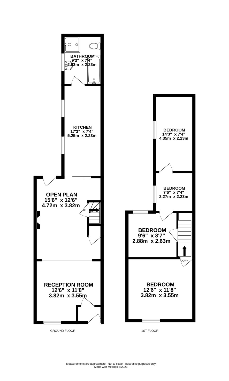
Ground Floor

Entrance Lobby , open-plan sitting/dining room, kitchen, bathroom

First Floor

Two bedrooms off landing with bedroom three accessed via bedroom two with an interconnecting room which could make a useful study.

Outside

Bisected rear garden with timber outbuildings which could be removed to make off-road parking

Council Tax Band

A

Viewing

Open viewings are by appointment only and the next available is on Friday 3 February. Please call Norwich office to book an appointment.

Energy Efficiency Rating (EPC)

Current Rating D

Services

Interested parties are requested to make their own enquiries to the relevant authorities as to the availability of services.

Local Authority

Great Yarmouth Borough Council

Solicitors

Ward Gethin Archer (Dereham), Ref: Tracy Guest, Tel: 01362 852918

Important Notice to Prospective Buyers:

We draw your attention to the Special Conditions of Sale within the Legal Pack, referring to other charges in addition to the purchase price which may become payable. Such costs may include Search Fees, reimbursement of Sellers costs and Legal Fees, and Transfer Fees amongst others.

Additional Fees

Buyer's Premium - £600 inc VAT payable on exchange of contracts.

Administration Charge - 0.3% inc VAT of the purchase price, subject to a minimum of £1200 inc VAT, payable on exchange of contracts.

Disbursements - Please see the legal pack for any disbursements listed that may become payable by the purchaser on completion.

View Larger Map

Disclaimer: The map preview provided above is for general guidance only and may not accurately reflect the exact location or surrounding buildings. Prospective buyers and interested parties are strongly advised to independently verify the precise location and surroundings before bidding.