Withdrawn | Lot 22

Rose Cottage, Linstead Road, Huntingfield, Halesworth, Suffolk IP19 0QP

Withdrawn

  • Detached House
  • 3 Bedrooms
  • Tenure: Freehold

Call the team on 01473 558 888 for more information

Auction Date

Wed 08/02/2023

Auction Time

11:00

Auction Venue

Livestream Auction

A wonderful rural detached cottage standing in approximately 2.8 acres (STMS).

Situated in a wonderful rural, but not totally isolated setting, is this delightful, detached cottage with grounds extending to approximately 2.8 acres comprising formal gardens, woodland and a meadow with separate gated access from the road. The property offers three bedroom accommodation with a wealth of character, including open fireplaces, many exposed timbers and is an idyllic and peaceful retreat from the hustle and bustle of busy life. The property faces and backs onto farmland and the grounds are a wonderful feature, those with an equestrian interest will no doubt be drawn to the gated meadow section which may also offer development potential in the longer term (STPP). Viewing is an absolute must.

Tenure

Freehold

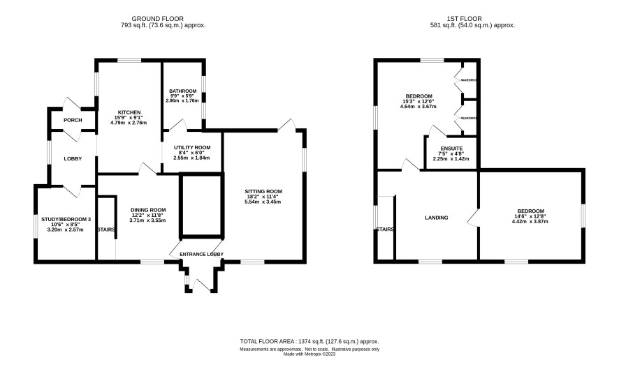
Ground Floor

Kitchen with separate utility room, lobby and further porch area, sitting room, dining room, bathroom and study/third bedroom.

First Floor

Stairs up to generous landing area leading to two good-sized bedrooms, one with ensuite and fitted wardrobes.

Outside

The grounds extend to approximately 2.8 acres with formal gardens, woodland, a meadow with separate gated access and a detached garage.

Council Tax Band

D

Viewing

The final Open Viewing has been scheduled for the morning of Monday 6th February. BOOKING AN APPOINTMRNT IS ESSENTIAL. Please contact our Ipswich office to make arrangements.

Energy Efficiency Rating (EPC)

Current Rating E

Services

Interested parties are requested to make their own enquiries to the relevant authorities as to the availability of services.

Local Authority

East Suffolk Council

Solicitors

Allens Cadge and Gilbert (Halesworth), Ref: Teresa Utting, Tel: 01986 875246

Important Notice to Prospective Buyers:

We draw your attention to the Special Conditions of Sale within the Legal Pack, referring to other charges in addition to the purchase price which may become payable. Such costs may include Search Fees, reimbursement of Sellers costs and Legal Fees, and Transfer Fees amongst others.

Additional Fees

Buyer's Premium - 0.6% inc VAT of the purchase price, payable on exchange of contracts.

Administration Charge - 0.3% inc VAT of the purchase price, subject to a minimum of £1200 inc VAT, payable on exchange of contracts.

Disbursements - Please see the legal pack for any disbursements listed that may become payable by the purchaser on completion.

View Larger Map

Disclaimer: The map preview provided above is for general guidance only and may not accurately reflect the exact location or surrounding buildings. Prospective buyers and interested parties are strongly advised to independently verify the precise location and surroundings before bidding.