Sold Prior | Lot 56

128 Cambridge Road, Barton, Cambridge, Cambridgeshire CB23 7AR

Sold Prior

  • Detached House
  • 3 Bedrooms
  • Tenure: Freehold

Call the team on 01733 889833 for more information

Auction Date

Wed 08/02/2023

Auction Time

11:00

Auction Venue

Livestream Auction

A detached three bedroom house in need of finishing internally on the edge of the village of Barton

This detached three bedroom house is an ideal purchase for a builder/developer to complete the works. Located on the edge of the village the property has rural views to the rear and offers generous accommodation. The property is offered with vacant possession. The village of Barton is located three miles West of the university city of Cambridge. The village offers the Burwash Manor Barns with a number of independent outlets, primary school, post office and bus service into Cambridge. A mainline rail link can be found in Cambridge with links into London Kings Cross.

Tenure

Freehold

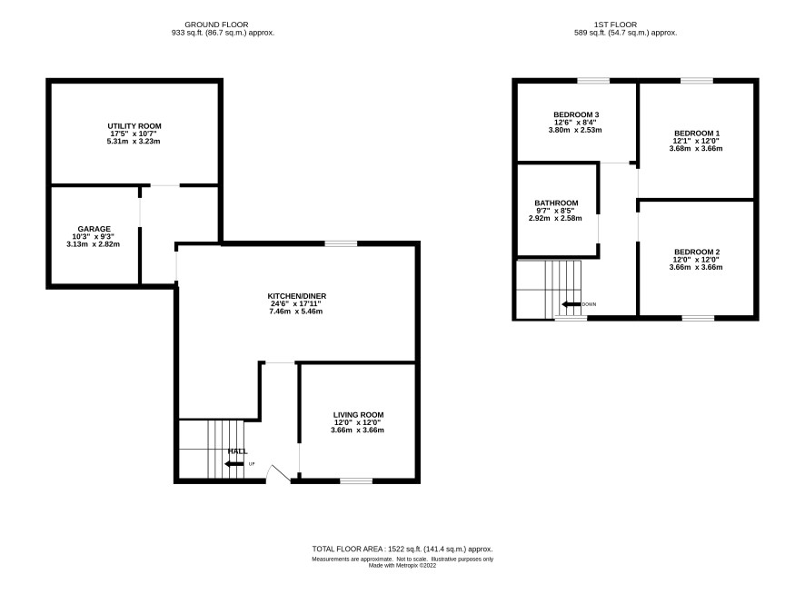
Ground Floor

Hall, living room, kitchen/diner and utility room

First Floor

Three bedrooms and a bathroom

Outside

Garden to front and rear

Note

We have been informed by the vendors that the property has Japanese Knotweed in the garden.

Council Tax Band

E

Energy Efficiency Rating (EPC)

Current Rating G

Services

Interested parties are requested to make their own enquiries to the relevant authorities as to the availability of services.

Local Authority

South Cambridgeshire District Council

Solicitors

Ascent Legal, Ref: Lylieth Williams, Tel: 0330 159 4850

Important Notice to Prospective Buyers:

We draw your attention to the Special Conditions of Sale within the Legal Pack, referring to other charges in addition to the purchase price which may become payable. Such costs may include Search Fees, reimbursement of Sellers costs and Legal Fees, and Transfer Fees amongst others.

Additional Fees

Buyer's Premium - £1140 inc VAT payable on exchange of contracts.

Administration Charge - 0.3% inc VAT of the purchase price, subject to a minimum of £1200 inc VAT, payable on exchange of contracts.

Disbursements - Please see the legal pack for any disbursements listed that may become payable by the purchaser on completion.

View Larger Map

Disclaimer: The map preview provided above is for general guidance only and may not accurately reflect the exact location or surrounding buildings. Prospective buyers and interested parties are strongly advised to independently verify the precise location and surroundings before bidding.