Withdrawn | Lot 91

Land adjoining Chippenhall Hall (Heritage Barn), Laxfield Road, Fressingfield, Suffolk IP21 5TD

Withdrawn

  • Detached House
  • Tenure: Freehold

Call the team on 01473 558 888 for more information

Auction Date

Wed 08/02/2023

Auction Time

11:00

Auction Venue

Livestream Auction

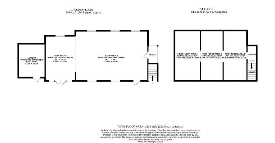
Grade II listed barn with permission for residential redevelopment

Heritage Barn presents a timber framed barn with permission (DC/21/05271) to convert into a two-bedroom detached property and a separate cart lodge. The property benefits from off-street parking, rural views and is situated on the outskirts of Fressingfield.

Tenure

Freehold

Viewing

Open viewings can be arranged. BOOKING AN APPOINTMENT IS ESSENTIAL. Please contact our Ipswich office to make arrangements.

Services

Interested parties are requested to make their own enquiries to the relevant authorities as to the availability of services.

Local Authority

Mid Suffolk District Council

Solicitors

Bindman and Co, Ref: Claire Stanton, Tel: 0191 432 4408

Important Notice to Prospective Buyers:

We draw your attention to the Special Conditions of Sale within the Legal Pack, referring to other charges in addition to the purchase price which may become payable. Such costs may include Search Fees, reimbursement of Sellers costs and Legal Fees, and Transfer Fees amongst others.

Additional Fees

Buyer's Premium - £1200 inc VAT payable on exchange of contracts.

Administration Charge - 0.3% inc VAT of the purchase price, subject to a minimum of £1200 inc VAT, payable on exchange of contracts.

Disbursements - Please see the legal pack for any disbursements listed that may become payable by the purchaser on completion.

View Larger Map

Disclaimer: The map preview provided above is for general guidance only and may not accurately reflect the exact location or surrounding buildings. Prospective buyers and interested parties are strongly advised to independently verify the precise location and surroundings before bidding.