For Sale By Auction | 11:00, 08 February 2023 | Lot 35

105 - 107 Bramford Road, Ipswich, Suffolk IP1 2LP

Sold £124,000

  • Shop
  • Tenure: Freehold

Call the team on 01473 558 888 for more information

Auction Date

Wed 08/02/2023

Auction Time

11:00

Auction Venue

Livestream Auction

A freehold retail premises suited to a variety of trades

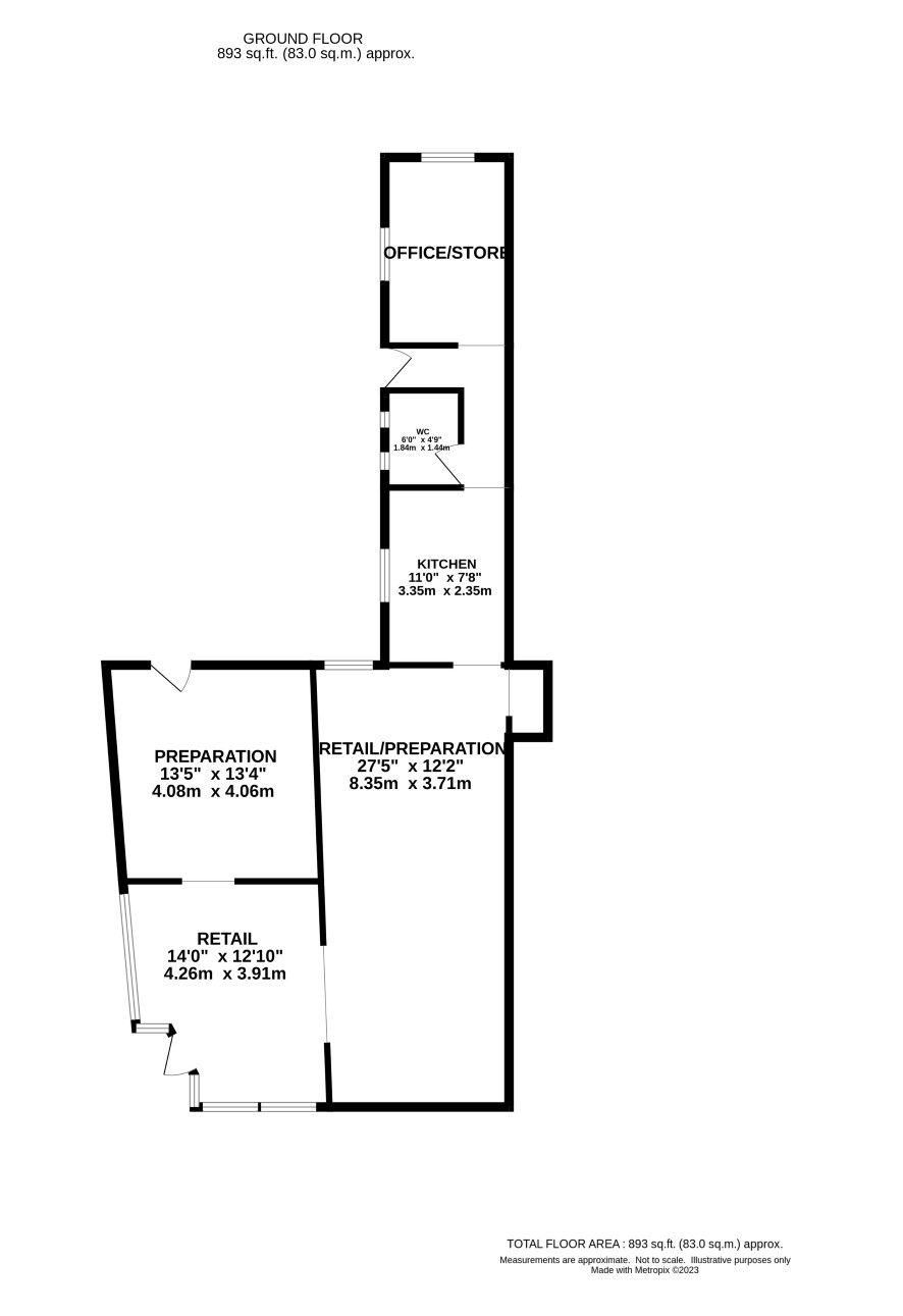
Situated to the west of the town centre within a small parade and serving a densely populated residential area is this retail premises which most recently traded as a florists. The property comprises 2 interconnected units which would benefit from improvement and includes storage space, kitchen & WC facilities. Offering potential for alternative use (subject to any required Planning Permission) we believe this to be an investment opportunity not to be missed.

Tenure

Freehold

Viewing

Further Open Viewing has now been arranged for the morning of Wednesday 1st February. BOOKING AN APPOINTMENT IS ESSENTIAL. Please contact our Ipswich office to make arrangements.

Energy Efficiency Rating (EPC)

Current Rating E

Services

Interested parties are requested to make their own enquiries to the relevant authorities as to the availability of services.

Local Authority

Ipswich Borough Council

Solicitors

TLT LLP (Elm Team), Ref: Robert Counsell, Tel: 0333 0060815

Important Notice to Prospective Buyers:

We draw your attention to the Special Conditions of Sale within the Legal Pack, referring to other charges in addition to the purchase price which may become payable. Such costs may include Search Fees, reimbursement of Sellers costs and Legal Fees, and Transfer Fees amongst others.

Additional Fees

Buyer's Premium - £900 inc VAT payable on exchange of contracts.

Administration Charge - 0.3% inc VAT of the purchase price, subject to a minimum of £1200 inc VAT, payable on exchange of contracts.

Disbursements - Please see the legal pack for any disbursements listed that may become payable by the purchaser on completion.

View Larger Map

Disclaimer: The map preview provided above is for general guidance only and may not accurately reflect the exact location or surrounding buildings. Prospective buyers and interested parties are strongly advised to independently verify the precise location and surroundings before bidding.