Withdrawn | Lot 30

2 Wellington Road, Great Yarmouth, Norfolk NR30 3AW

Withdrawn

  • Terraced House
  • 5 Bedrooms
  • Tenure: Freehold

Call the team on 01603 505 100 for more information

Auction Date

Wed 08/02/2023

Auction Time

11:00

Auction Venue

Livestream Auction

Substantial three storey mid terraced in need of some remedial and renovation situated close to the sea in the popular resort of Great Yarmouth

This five bedroom mid terraced property is situated close to the sea in the popular east coast resort of Great Yarmouth. The property comprises of generous accommodation arranged over three floors. In need of some remedial work and updating this property would make an ideal project and once completed would be suitable as an investment for the buy to let market.

Tenure

Freehold

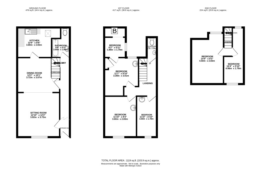
Ground Floor

Hall, lounge/diner, kitchen, bathroom stairs to first floor

First Floor

Landing two bedrooms to the front with a third to the rear and a further interconnecting bedroom, cloakroom, stairs to second floor

Second Floor

Landing with two bedrooms

Outside

NB: There is no outside space with this property.

Council Tax Band

B

Viewings

Open days have been arranged at the property and the next are on Monday, 13th February 2023. Please call the office to book an appointment.

Energy Efficiency Rating (EPC)

Current Rating E

Services

Interested parties are requested to make their own enquiries to the relevant authorities as to the availability of services.

Local Authority

Great Yarmouth Borough Council

Solicitors

Ward Gethin Archer (Dereham), Ref: Tracy Guest, Tel: 01362 852918

Important Notice to Prospective Buyers:

We draw your attention to the Special Conditions of Sale within the Legal Pack, referring to other charges in addition to the purchase price which may become payable. Such costs may include Search Fees, reimbursement of Sellers costs and Legal Fees, and Transfer Fees amongst others.

Additional Fees

Buyer's Premium - £960 inc VAT payable on exchange of contracts.

Administration Charge - 0.3% inc VAT of the purchase price, subject to a minimum of £1200 inc VAT, payable on exchange of contracts.

Disbursements - Please see the legal pack for any disbursements listed that may become payable by the purchaser on completion.

View Larger Map

Disclaimer: The map preview provided above is for general guidance only and may not accurately reflect the exact location or surrounding buildings. Prospective buyers and interested parties are strongly advised to independently verify the precise location and surroundings before bidding.