For Sale By Auction | 11:00, 08 February 2023 | Lot 80

5 Clarence Road, Gorleston, Great Yarmouth, Norfolk NR31 6DT

Sold £241,000

  • Semi-Detached House
  • 5 Bedrooms
  • Tenure: Freehold

Call the team on 01603 505 100 for more information

Auction Date

Wed 08/02/2023

Auction Time

11:00

Auction Venue

Livestream Auction

Substantial three storey period property with current HMO licence and potential to earn in excess of £31,800 pa or conversion into a beautiful family home (stpp)

This substantial three storey house is situated in a desirable street close to the seafront of Gorleston and convenient for the James Paget Hospital. This imposing family home has for the past three decades been run as a successful HMO and has a licence to continue. However, with one tenant remaining and moving on shortly the owner has decided to sell giving the option for a purchaser to restore into an impressive family home. If you are looking for a project of a character property this would not disappoint. Offering 5 rooms under the HMO licence, two of which have en-suite shower rooms, three others have shared facilities. There are two kitchens, one on the ground floor and one on the first floor, along with one shared bathroom on the first floor. There is a communal garden and double garage to the rear of the property. The property has potential to earn an annual income of £31,800 per annum.

Tenure

Freehold

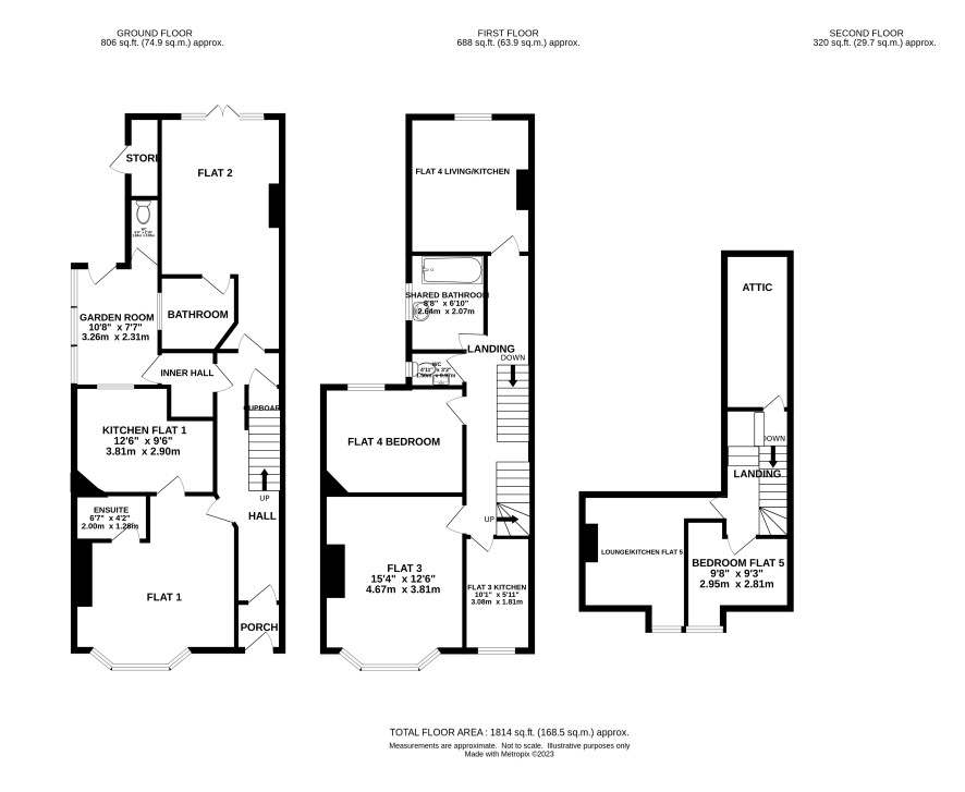
Ground Floor

Shared entrance hall, utility room, wc Flat 1 with bedroom/sitting room, kitchen, en-suite bathroom Flat 2 with hall, bedroom/sitting room, bathroom

First Floor

Landing Flat 3: Bedroom/sitting room, kitchen Flat 4: Living room/kitchen, bedroom Shared bathroom and separate wc for flats 3, 4 and 5

Second Floor

Flat 5: Living room/kitchen, bedroom

Outside

Walled front garden. Private rear garden with store shed and double garage approached via rear lane.

Council Tax Band

5 Clarence Road = C Flat 1 = A

Viewing

Viewings are being arranged and the next is on Friday 3 and Monday 6 February. Appointment essential. Please contact the Norwich office to book a slot.

Energy Efficiency Rating (EPC)

Current Rating E

Services

Interested parties are requested to make their own enquiries to the relevant authorities as to the availability of services.

Local Authority

Great Yarmouth Borough Council

Solicitors

Spire Solicitors LLP (Diss), Ref: Liz Bailey, Tel: 01379 641221

Important Notice to Prospective Buyers:

We draw your attention to the Special Conditions of Sale within the Legal Pack, referring to other charges in addition to the purchase price which may become payable. Such costs may include Search Fees, reimbursement of Sellers costs and Legal Fees, and Transfer Fees amongst others.

Additional Fees

Buyer's Premium - £960 inc VAT payable on exchange of contracts.

Administration Charge - 0.3% inc VAT of the purchase price, subject to a minimum of £1200 inc VAT, payable on exchange of contracts.

Disbursements - Please see the legal pack for any disbursements listed that may become payable by the purchaser on completion.

View Larger Map

Disclaimer: The map preview provided above is for general guidance only and may not accurately reflect the exact location or surrounding buildings. Prospective buyers and interested parties are strongly advised to independently verify the precise location and surroundings before bidding.