For Sale By Auction | 11:00, 22 March 2023 | Lot 20

11 Woodyard Close, Mulbarton, Norwich, Norfolk NR14 8AS

Sold £196,000

  • Semi-Detached House
  • 3 Bedrooms
  • Tenure: Freehold

Call the team on 01603 505 100 for more information

Auction Date

Wed 22/03/2023

Auction Time

11:00

Auction Venue

Livestream Auction

Three bedroom semi-detached house requiring refurbishment located in sought after village

This property has been in the same ownership for over 25 years and is now to be sold with vacant possession. It requires a programme of updating and improvement to realise its full potential. The attached garage, with access from inside the house, and good size rear garden gives the potential to extend, subject to the necessary consents. Mulbarton is a popular village with its own common and has a range of services and amenities. It is well located around six miles south of Norwich. An ideal purchase for an owner occupier or investor. On instruction of Executors

Tenure

Freehold

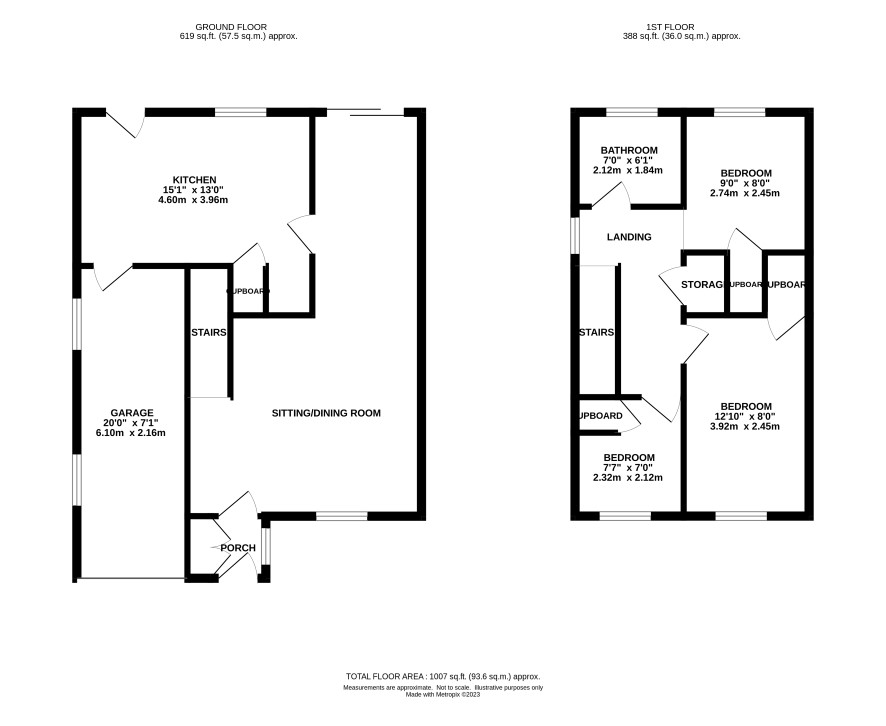
Ground floor

Entrance lobby, sitting room / dining room, kitchen

First floor

Landing, bathroom, three bedrooms

Outside

Garage, front garden, rear garden in need of attention, timber shed

Council Tax Band

B

Viewings

Open viewings are being held and the final one is on Monday 20 March. Please contact the Norwich Office to book a slot.

Energy Efficiency Rating (EPC)

Current Rating E

Services

Interested parties are requested to make their own enquiries to the relevant authorities as to the availability of services.

Local Authority

South Norfolk Council

Solicitors

Sandersons, Ref: Geoff Davis, Tel: 01482 324662

Important Notice to Prospective Buyers:

We draw your attention to the Special Conditions of Sale within the Legal Pack, referring to other charges in addition to the purchase price which may become payable. Such costs may include Search Fees, reimbursement of Sellers costs and Legal Fees, and Transfer Fees amongst others.

Additional Fees

Administration Charge - 0.3% inc VAT of the purchase price, subject to a minimum of £1200 inc VAT, payable on exchange of contracts.

Disbursements - Please see the legal pack for any disbursements listed that may become payable by the purchaser on completion.

View Larger Map

Disclaimer: The map preview provided above is for general guidance only and may not accurately reflect the exact location or surrounding buildings. Prospective buyers and interested parties are strongly advised to independently verify the precise location and surroundings before bidding.