For Sale By Auction | 11:00, 22 March 2023 | Lot 39

37 Princes Road, Wisbech, Cambridgeshire PE13 2PG

Sold £170,000

  • Semi-Detached House
  • 4 Bedrooms
  • Tenure: Freehold

Call the team on 01733 889833 for more information

Auction Date

Wed 22/03/2023

Auction Time

11:00

Auction Venue

Livestream Auction

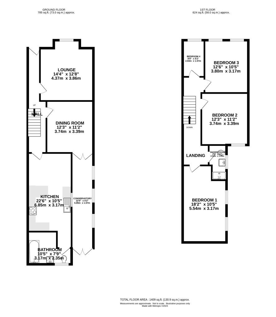
A semi detached four bedroom Victorian house in need of renovation and repair

This four bedroom semi detached house is offered with vacant possession and would be a great project for a DIY enthusiast offering generous accommodation with rooms on two levels. The property comprises two reception rooms, kitchen, conservatory and ground floor bathroom, with four bedrooms and a shower room on the first floor. Outside provides a courtyard garden and gated parking at the rear. Wisbech is located between Kings Lynn and Peterborough on the A47. Both centres provide a rail link into London. Wisbech provides a variety of shops and schooling.

Tenure

Freehold

Ground Floor

Hall, lounge, dining room, kitchen, conservatory and bathroom.

First floor.

Four bedrooms and a shower room.

Outside.

Rear courtyard and gated parking.

Council Tax Band

B

Energy Efficiency Rating (EPC)

Current Rating E

Services

Interested parties are requested to make their own enquiries to the relevant authorities as to the availability of services.

Local Authority

Fenland District Council

Solicitors

Bindman and Co, Ref: Claire Stanton, Tel: 0191 432 4408

Offered in association with

Robert Hale Estate Agents

Important Notice to Prospective Buyers:

We draw your attention to the Special Conditions of Sale within the Legal Pack, referring to other charges in addition to the purchase price which may become payable. Such costs may include Search Fees, reimbursement of Sellers costs and Legal Fees, and Transfer Fees amongst others.

Additional Fees

Buyer's Premium - £900 inc VAT payable on exchange of contracts.

Administration Charge - 0.3% inc VAT of the purchase price, subject to a minimum of £1200 inc VAT, payable on exchange of contracts.

Disbursements - Please see the legal pack for any disbursements listed that may become payable by the purchaser on completion.

View Larger Map

Disclaimer: The map preview provided above is for general guidance only and may not accurately reflect the exact location or surrounding buildings. Prospective buyers and interested parties are strongly advised to independently verify the precise location and surroundings before bidding.