For Sale By Auction | 11:00, 22 March 2023 | Lot 74

51 Albion Road, Great Yarmouth, Norfolk NR30 2JD

Sold £102,000

  • Terraced House
  • 4 Bedrooms
  • Tenure: Freehold

Call the team on 01603 505 100 for more information

Auction Date

Wed 22/03/2023

Auction Time

11:00

Auction Venue

Livestream Auction

Four bedroom hall entrance bay fronted mid terrace house requiring refurbishment

This spacious property previously operated as a house of multiple occupation (HMO) and is now to be sold with vacant possession. The property has been in the same family ownership for over 40 years and requires modernisation and improvement. The property is well located near to the town centre and seafront.

Tenure

Freehold

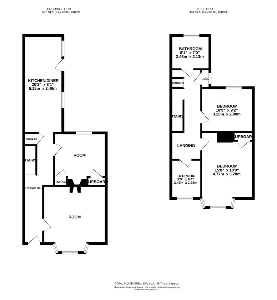
Lower Ground floor

Cellar

Ground floor

Entrance hall, rooms 4 and 5, kitchen / dining room

First floor

Landing, rooms 1, 2 and 3, shower room, wc

Outside

Rear yard with rear access to Russell Square

Council Tax Band:

C

Viewings

Open viewings have been arranged and the next are on Tuesday 14 March. To book an appointment please call the Norwich office.

Energy Efficiency Rating (EPC)

Current Rating F

Services

Interested parties are requested to make their own enquiries to the relevant authorities as to the availability of services.

Local Authority

Great Yarmouth Borough Council

Solicitors

Norton Peskett (Gorleston), 66A-67 Bells Road, Ref: Amanda Stephenson, Tel: 01493 652204

Offered in association with

Bycroft Residential

Important Notice to Prospective Buyers:

We draw your attention to the Special Conditions of Sale within the Legal Pack, referring to other charges in addition to the purchase price which may become payable. Such costs may include Search Fees, reimbursement of Sellers costs and Legal Fees, and Transfer Fees amongst others.

Additional Fees

Buyer's Premium - £900 inc VAT payable on exchange of contracts.

Administration Charge - 0.3% inc VAT of the purchase price, subject to a minimum of £1200 inc VAT, payable on exchange of contracts.

Disbursements - Please see the legal pack for any disbursements listed that may become payable by the purchaser on completion.

View Larger Map

Disclaimer: The map preview provided above is for general guidance only and may not accurately reflect the exact location or surrounding buildings. Prospective buyers and interested parties are strongly advised to independently verify the precise location and surroundings before bidding.