For Sale By Auction | 11:00, 22 March 2023 | Lot 84

248 St. Peters Street, Lowestoft, Suffolk NR32 2NA

Sold £92,000

  • Terraced House
  • 2 Bedrooms
  • Tenure: Freehold

Call the team on 01603 505 100 for more information

Auction Date

Wed 22/03/2023

Auction Time

11:00

Auction Venue

Livestream Auction

Two bedroom terrace house in need of updating

Vacant two bedroom terrace house, close to Lowestoft college, requiring modernisation and redecoration. The property is double glazed and has electric heating. There is a good sized rear garden with potential for off road parking. The property is ideal for investment or owner occupation The town centre, shops and railway station are within walking distance.

Tenure

Freehold

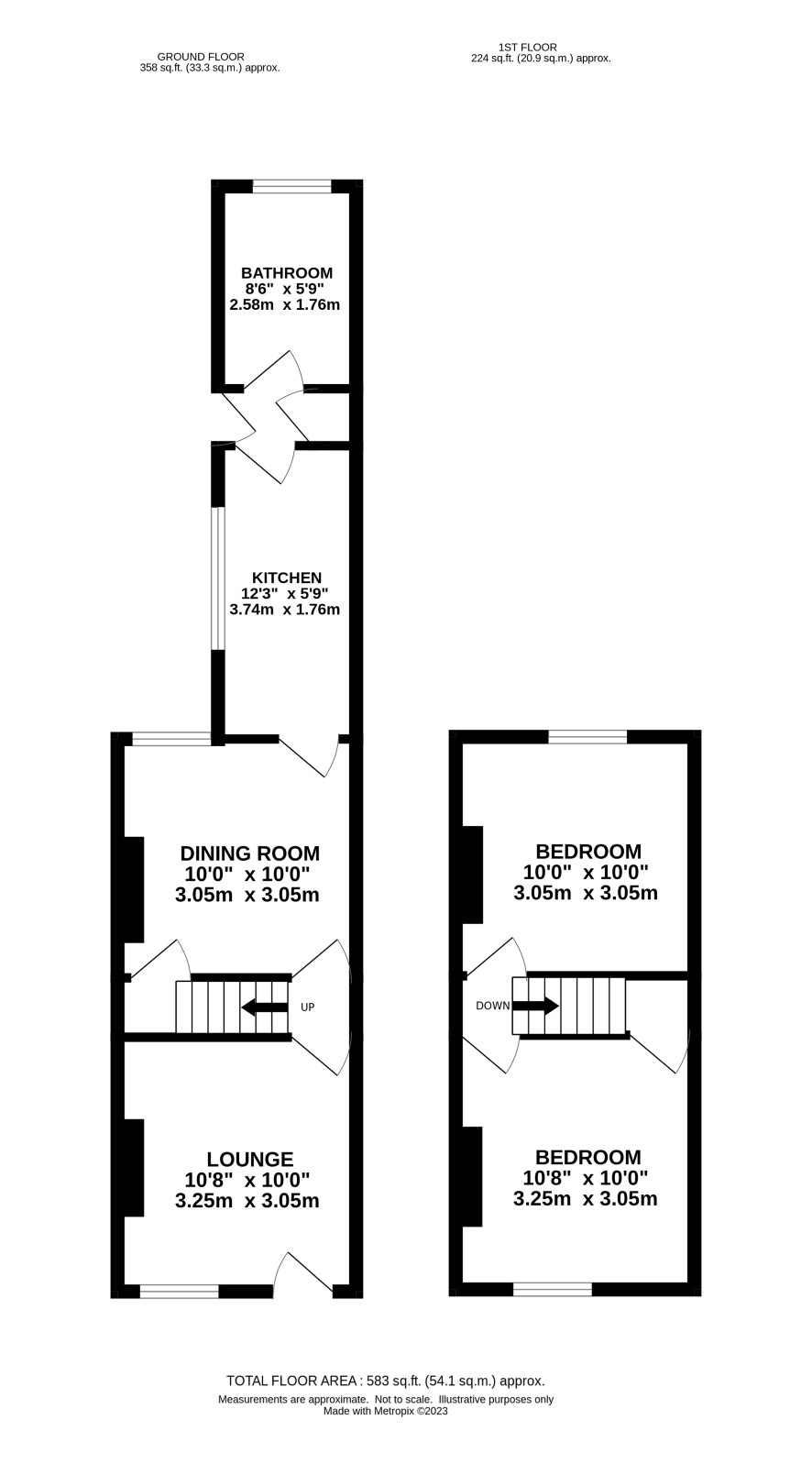
Ground Floor

Lounge, dinning room, kitchen, rear lobby, bathroom

First Floor

Landing, two double bedrooms

Outside

Small front garden, mainly lawned rear garden with rear pedestrian access (potential off road parking).

Council Tax Band

A

Viewings

Open viewings are arranged and the next are on Thursday 16 March. To book an appointment please call the Norwich office.

Energy Efficiency Rating (EPC)

Current Rating D

Services

Interested parties are requested to make their own enquiries to the relevant authorities as to the availability of services.

Local Authority

Waveney District Council

Solicitors

Goodwin Cowley (Norwich), Ref: Rosalind Duncan, Tel: 0330 055 7598

Offered in association with

Gage Letting Agents

Important Notice to Prospective Buyers:

We draw your attention to the Special Conditions of Sale within the Legal Pack, referring to other charges in addition to the purchase price which may become payable. Such costs may include Search Fees, reimbursement of Sellers costs and Legal Fees, and Transfer Fees amongst others.

Additional Fees

Buyer's Premium - £600 inc VAT payable on exchange of contracts.

Administration Charge - 0.3% inc VAT of the purchase price, subject to a minimum of £1200 inc VAT, payable on exchange of contracts.

Disbursements - Please see the legal pack for any disbursements listed that may become payable by the purchaser on completion.

View Larger Map

Disclaimer: The map preview provided above is for general guidance only and may not accurately reflect the exact location or surrounding buildings. Prospective buyers and interested parties are strongly advised to independently verify the precise location and surroundings before bidding.