For Sale By Auction | 11:00, 22 March 2023 | Lot 52

119 Little London, Long Sutton, Spalding, Lincolnshire PE12 9LF

Sold £106,000

  • End of Terrace House
  • 3 Bedrooms
  • Tenure: Freehold

Call the team on 01553 777 773 for more information

Auction Date

Wed 22/03/2023

Auction Time

11:00

Auction Venue

Livestream Auction

A three bedroom, two reception room end terrace house with vacant possession

This three bedroom end terrace house is offered with vacant possession and is located on the outskirts of Long Sutton town centre. The property briefly comprises lounge, dining room, kitchen and bathroom to the ground floor. To the first floor there are three bedrooms. Outside there is a rear garden and off road parking to front. The house also benefits from double glazing and gas central heating. The market town of Long Sutton has a range of amenities and is situated between larger market towns including Wisbech, King's Lynn, Spalding and Boston.

Tenure

Freehold

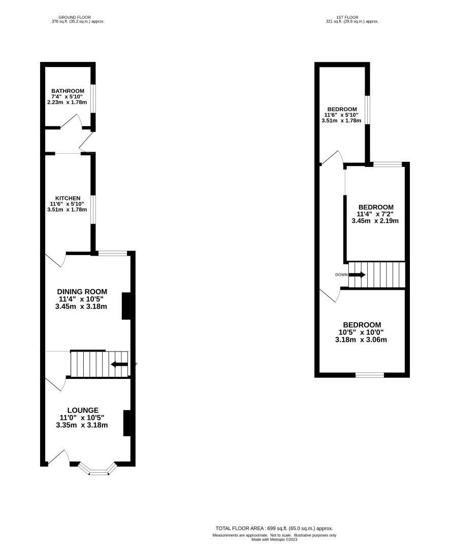
Ground Floor

Lounge, dining room, kitchen, bathroom

First Floor

Landing, three bedrooms

Outside

Rear garden, off road parking to front

Council Tax Band

A

Energy Efficiency Rating (EPC)

Current Rating D

Services

Interested parties are requested to make their own enquiries to the relevant authorities as to the availability of services.

Local Authority

South Holland District Council

Solicitors

Mossop and Bowser (Long Sutton), Ref: Sarah Doncaster, Tel: 01406363212

Important Notice to Prospective Buyers:

We draw your attention to the Special Conditions of Sale within the Legal Pack, referring to other charges in addition to the purchase price which may become payable. Such costs may include Search Fees, reimbursement of Sellers costs and Legal Fees, and Transfer Fees amongst others.

Additional Fees

Buyer's Premium - £900 inc VAT payable on exchange of contracts.

Administration Charge - 0.3% inc VAT of the purchase price, subject to a minimum of £1200 inc VAT, payable on exchange of contracts.

Disbursements - Please see the legal pack for any disbursements listed that may become payable by the purchaser on completion.

View Larger Map

Disclaimer: The map preview provided above is for general guidance only and may not accurately reflect the exact location or surrounding buildings. Prospective buyers and interested parties are strongly advised to independently verify the precise location and surroundings before bidding.