For Sale By Auction | 11:00, 22 March 2023 | Lot 24

118 Westley Road, Bury St. Edmunds, Suffolk IP33 3SD

Sold £304,000

  • Detached Bungalow
  • 2 Bedrooms
  • Tenure: Freehold

Call the team on 01473 558 888 for more information

Auction Date

Wed 22/03/2023

Auction Time

11:00

Auction Venue

Livestream Auction

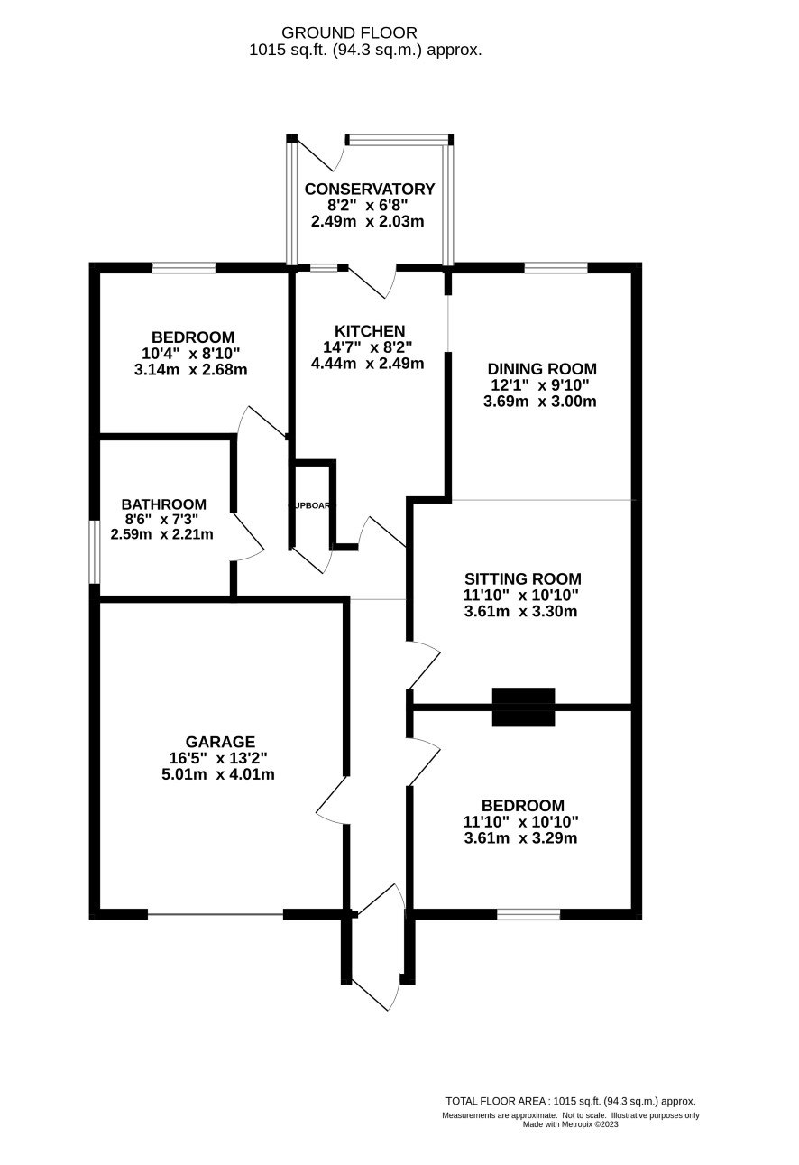
Two-bedroom detached bungalow with large garden, integral garage and off-street parking

This detached bungalow is located to the west of the centre of Bury St Edmunds and is in need of modernising throughout but presents a fantastic value add opportunity for both investors and owner-occupiers. The property comprises two bedrooms, bathroom, kitchen, living room, dining room, an integral garage and a conservatory. The rooms are all well proportioned. There is a substantial parking space to the front and a large garden to the rear with two outbuildings and three greenhouses.

Tenure

Freehold

Accommodation

Two bedrooms, bathroom, kitchen, living room, dining room

Outside

Garage with off street parking, two outbuildings, three greenhouses, garden to rear.

Council Tax Band

C

Viewing

Viewings are being held and the next are opportunities are on Friday 3rd, Wednesday 8th and Friday 17th March. APPOINTMENT ESSENTIAL - please call our Ipswich office to arrange an appointment.

Energy Efficiency Rating (EPC)

Current Rating E

Services

Interested parties are requested to make their own enquiries to the relevant authorities as to the availability of services.

Local Authority

West Suffolk Council

Solicitors

Burnett Barker, Ref: Jane McIlroy, Tel: 01284 701131

Important Notice to Prospective Buyers:

We draw your attention to the Special Conditions of Sale within the Legal Pack, referring to other charges in addition to the purchase price which may become payable. Such costs may include Search Fees, reimbursement of Sellers costs and Legal Fees, and Transfer Fees amongst others.

Additional Fees

Buyer's Premium - £1200 inc VAT payable on exchange of contracts.

Administration Charge - 0.3% inc VAT of the purchase price, subject to a minimum of £1200 inc VAT, payable on exchange of contracts.

Disbursements - Please see the legal pack for any disbursements listed that may become payable by the purchaser on completion.

View Larger Map

Disclaimer: The map preview provided above is for general guidance only and may not accurately reflect the exact location or surrounding buildings. Prospective buyers and interested parties are strongly advised to independently verify the precise location and surroundings before bidding.