Postponed | Lot 36

105 The Causeway, Burwell, Cambridge, Cambridgeshire CB25 0DU

Postponed

  • Commercial Property
  • Tenure: Freehold

Call the team on 01733 889833 for more information

Auction Date

Wed 22/03/2023

Auction Time

11:00

Auction Venue

Livestream Auction

A detached freehold commercial investment currently producing £13,200 pa

This commercial property is currently producing an income of £13,200pa which is currently trading as a coffee shop. We are offering the freehold interest in the building with the first floor flat already sold off on a long lease. On the ground floor there is a coffee shop, kitchen preparation area and toilet facilities with parking to the rear. Burwell is located west of the famous flat racing centre of Newmarket and north of the University City of Cambridge. The village offers local facilities.

Tenure

Freehold

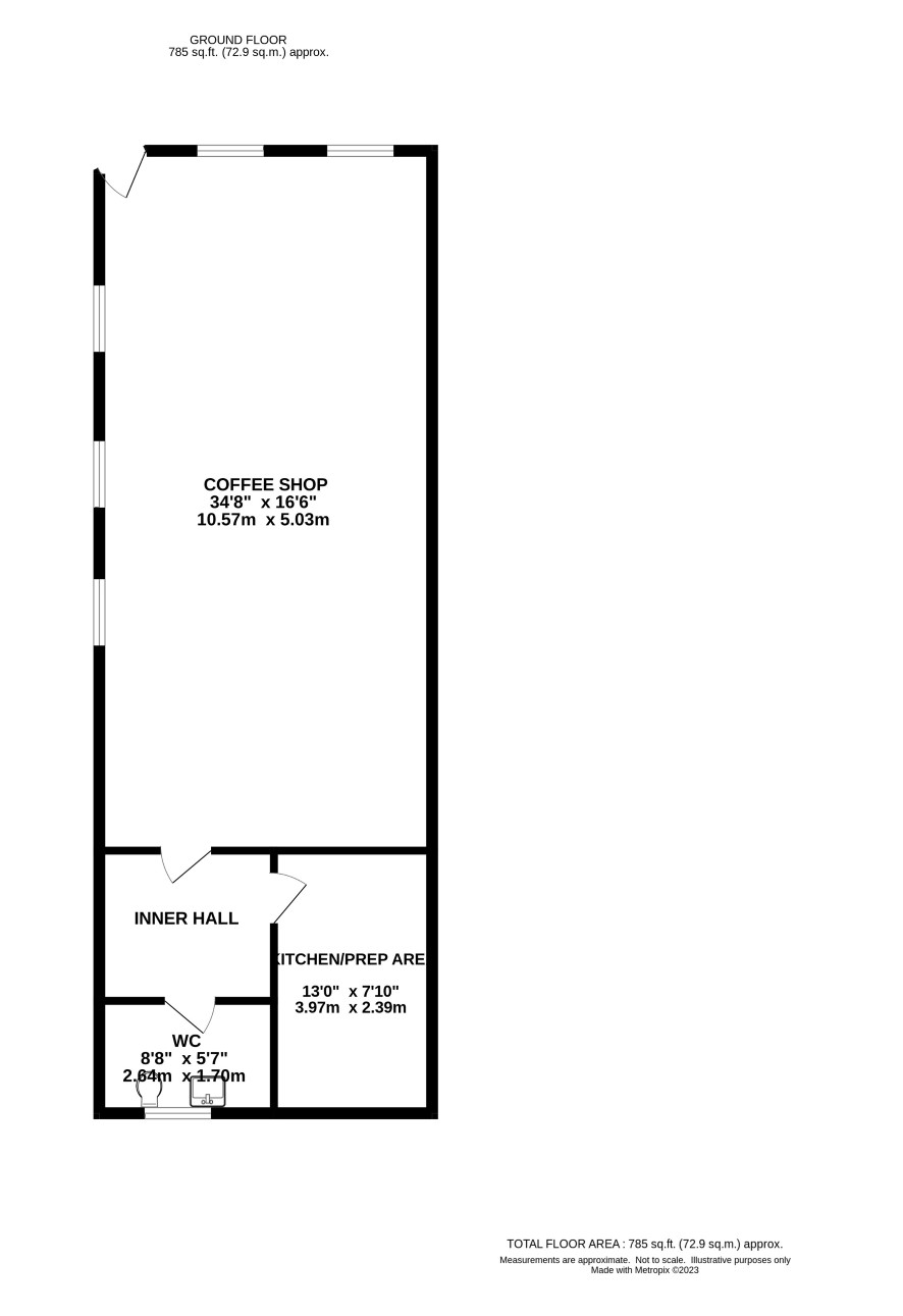
Ground Floor

Coffee shop, kitchen preparation area and toilet facilities

Outside

Parking at rear.

Energy Efficiency Rating (EPC)

Current Rating C

Services

Interested parties are requested to make their own enquiries to the relevant authorities as to the availability of services.

Local Authority

East Cambridgeshire District Council

Solicitors

Hayward Moon (Bury St Edmunds), Ref: Nicholas Moon, Tel: 01284 727290

Important Notice to Prospective Buyers:

We draw your attention to the Special Conditions of Sale within the Legal Pack, referring to other charges in addition to the purchase price which may become payable. Such costs may include Search Fees, reimbursement of Sellers costs and Legal Fees, and Transfer Fees amongst others.

Additional Fees

Buyer's Premium - £900 inc VAT payable on exchange of contracts.

Administration Charge - 0.3% inc VAT of the purchase price, subject to a minimum of £1200 inc VAT, payable on exchange of contracts.

Disbursements - Please see the legal pack for any disbursements listed that may become payable by the purchaser on completion.

View Larger Map

Disclaimer: The map preview provided above is for general guidance only and may not accurately reflect the exact location or surrounding buildings. Prospective buyers and interested parties are strongly advised to independently verify the precise location and surroundings before bidding.