For Sale By Auction | 11:00, 22 March 2023 | Lot 30a

5 North Place, North Terrace, Mildenhall, Bury St. Edmunds, Suffolk IP28 7AB

Sold After

  • End of Terrace House
  • 2 Bedrooms
  • Tenure: Freehold

Call the team on 01473 558 888 for more information

Auction Date

Wed 22/03/2023

Auction Time

11:00

Auction Venue

Livestream Auction

End of terrace two bedroom, three bathroom, property with courtyard garden and roof terrace

The property benefits from large, well-proportioned and adaptable rooms which presents a fantastic refurbishment opportunity to the incoming buyer. Located towards the centre of Mildenhall the property is well situated, benefitting from access to a wide range of local amenities. Set back from the main road, the property provides off-road parking, a roof terrace and courtyard garden. An excellent investment or end user opportunity which is not to be missed.

Tenure

Freehold

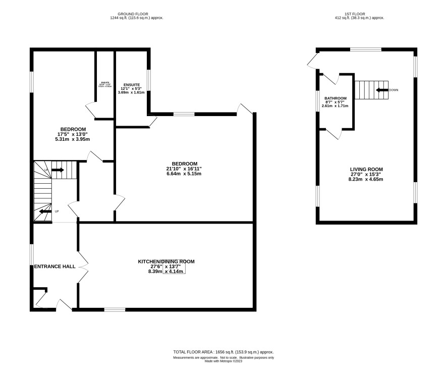
Ground Floor

Kitchen/diner, ensuite bedroom 1, ensuite bedroom 2

First Floor

Living Room, bathroom

Outside

Courtyard garden and off-road parking

Council Tax Band

A

Energy Efficiency Rating (EPC)

Current Rating F

Services

Interested parties are requested to make their own enquiries to the relevant authorities as to the availability of services.

Local Authority

Forest Heath District Council

Solicitors

Walker Morris LLP, 33 Wellington Street, Ref: Walker Morris LLP, Tel: 0113 283 2500

Offered in association with

Henleys (Mildenhall)

Important Notice to Prospective Buyers:

We draw your attention to the Special Conditions of Sale within the Legal Pack, referring to other charges in addition to the purchase price which may become payable. Such costs may include Search Fees, reimbursement of Sellers costs and Legal Fees, and Transfer Fees amongst others.

Additional Fees

Buyer's Premium - £1140 inc VAT payable on exchange of contracts.

Administration Charge - 0.3% inc VAT of the purchase price, subject to a minimum of £1200 inc VAT, payable on exchange of contracts.

Disbursements - Please see the legal pack for any disbursements listed that may become payable by the purchaser on completion.

View Larger Map

Disclaimer: The map preview provided above is for general guidance only and may not accurately reflect the exact location or surrounding buildings. Prospective buyers and interested parties are strongly advised to independently verify the precise location and surroundings before bidding.