For Sale By Auction | 11:00, 04 May 2023 | Lot 79

12 Oldbrook, Bretton, Peterborough, Cambridgeshire PE3 8SH

Sold £147,000

  • Terraced House
  • 3 Bedrooms
  • Tenure: Freehold

Call the team on 01733 889833 for more information

Auction Date

Thu 04/05/2023

Auction Time

11:00

Auction Venue

Livestream Auction

A vacant three bedroom terraced house with a potential rental income of £850 pcm

An ideal purchase for an investor looking to add to their portfolio, this three bedroom house has a potential income of £850 pcm. The property is located in Bretton with its local facilities and has a lounge, kitchen/diner, w.c. three bedrooms and a bathroom. The property has a garden at the rear. Peterborough offers shopping and recreational facilities with a main line rail link providing access to London Kings Cross and the North.

Tenure

Freehold

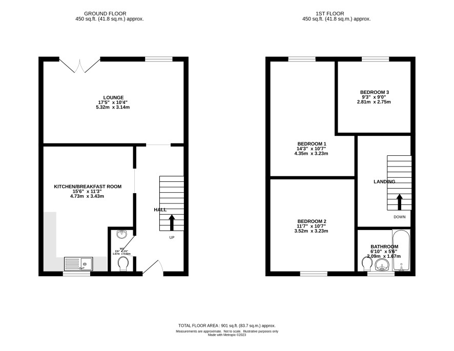
Ground Floor

Hall, lounge, kitchen/diner and a w.c.

First Floor

Three bedrooms, bathroom

Outside

Garden at rear.

Council Tax Band

A

Energy Efficiency Rating (EPC)

Current Rating C

Services

Interested parties are requested to make their own enquiries to the relevant authorities as to the availability of services.

Local Authority

Peterborough City Council

Solicitors

Buckles, Ref: Lisa Hardy, Tel: 01733 888805

Offered in association with

Pennell and Partners

Important Notice to Prospective Buyers:

We draw your attention to the Special Conditions of Sale within the Legal Pack, referring to other charges in addition to the purchase price which may become payable. Such costs may include Search Fees, reimbursement of Sellers costs and Legal Fees, and Transfer Fees amongst others.

Additional Fees

Buyer's Premium - £900 inc VAT payable on exchange of contracts.

Administration Charge - 0.3% inc VAT of the purchase price, subject to a minimum of £1200 inc VAT, payable on exchange of contracts.

Disbursements - Please see the legal pack for any disbursements listed that may become payable by the purchaser on completion.

View Larger Map

Disclaimer: The map preview provided above is for general guidance only and may not accurately reflect the exact location or surrounding buildings. Prospective buyers and interested parties are strongly advised to independently verify the precise location and surroundings before bidding.