For Sale By Auction | 11:00, 04 May 2023 | Lot 36

11 St. Nicholas Street, Diss, Norfolk IP22 4LB

Sold After

  • Restaurant
  • Tenure: Freehold

Call the team on 01473 558 888 for more information

Auction Date

Thu 04/05/2023

Auction Time

11:00

Auction Venue

Livestream Auction

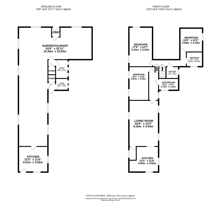
A most attractive bar/restaurant with 3 bedroom living accommodation

Situated in a prominent town centre location with a high volume of passing traffic and footfall is this Grade II Listed bar/restaurant with space for around 40 covers. The ground floor extends to around 1,300 sq ft (120 sq m) including a kitchen which was re-fitted a few years ago. The first floor offers very spacious three bedroom accommodation and to the rear is a good size garden/parking area. A fantastic opportunity to develop a lucrative business within the hospitality industry.

Tenure

Freehold

Viewing

By appointment with the Auctioneers.

VAT

Please note VAT is applicable to this lot.

Energy Efficiency Rating (EPC)

Current Rating D - expired

Services

Interested parties are requested to make their own enquiries to the relevant authorities as to the availability of services.

Local Authority

Mid Suffolk District Council

Solicitors

Gudgeons Prentice Solicitors, Ref: Robert Jackson, Tel: 01449 613101

Offered in association with

Cobbs Yard Property

Important Notice to Prospective Buyers:

We draw your attention to the Special Conditions of Sale within the Legal Pack, referring to other charges in addition to the purchase price which may become payable. Such costs may include Search Fees, reimbursement of Sellers costs and Legal Fees, and Transfer Fees amongst others.

Additional Fees

Buyer's Premium - 0.6% inc VAT of the purchase price, payable on exchange of contracts.

Administration Charge - 0.3% inc VAT of the purchase price, subject to a minimum of £1200 inc VAT, payable on exchange of contracts.

Disbursements - Please see the legal pack for any disbursements listed that may become payable by the purchaser on completion.

View Larger Map

Disclaimer: The map preview provided above is for general guidance only and may not accurately reflect the exact location or surrounding buildings. Prospective buyers and interested parties are strongly advised to independently verify the precise location and surroundings before bidding.