Withdrawn | Lot 71

28 Darthill Road, March PE15 8HP

Withdrawn

  • Bungalow
  • 2 Bedrooms
  • Tenure: Freehold

Call the team on 01733 889833 for more information

Auction Date

Thu 04/05/2023

Auction Time

11:00

Auction Venue

Livestream Auction

A detached two double bedroom bungalow offered with vacant possession close to the town centre

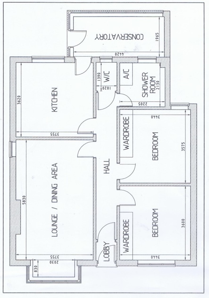
This two bedroom detached bungalow is located very close to the town centre and offers a drive and a garage. The accommodation includes a lounge/diner, kitchen, conservatory two double bedrooms and a shower and separate w.c. There is a drive to the side for several vehicles and a single garage. March offers shopping and recreational facilities together with a rail link into Peterborough and Huntingdon.

Tenure

Freehold

Accommodation

Hall, lounge/diner, kitchen, conservatory, two bedrooms, a shower room and separate w.c.

Outside

Drive, garage and garden at rear.

Council Tax Band

C

Energy Efficiency Rating (EPC)

Current Rating D

Services

Interested parties are requested to make their own enquiries to the relevant authorities as to the availability of services.

Local Authority

Fenland District Council

Solicitors

Bowsers Solicitors, Ref: Paula Judd, Tel: 01354 652606

Offered in association with

Robert Hale Estate Agents

Important Notice to Prospective Buyers:

We draw your attention to the Special Conditions of Sale within the Legal Pack, referring to other charges in addition to the purchase price which may become payable. Such costs may include Search Fees, reimbursement of Sellers costs and Legal Fees, and Transfer Fees amongst others.

Additional Fees

Buyer's Premium - £900 inc VAT payable on exchange of contracts.

Administration Charge - 0.3% inc VAT of the purchase price, subject to a minimum of £1200 inc VAT, payable on exchange of contracts.

Disbursements - Please see the legal pack for any disbursements listed that may become payable by the purchaser on completion.

View Larger Map

Disclaimer: The map preview provided above is for general guidance only and may not accurately reflect the exact location or surrounding buildings. Prospective buyers and interested parties are strongly advised to independently verify the precise location and surroundings before bidding.