Postponed | Lot 89

7 Beach Road, Lowestoft, Suffolk NR32 1EA

Postponed

  • Terraced House
  • 7 Bedrooms
  • Tenure: Freehold

Call the team on 01603 505 100 for more information

Auction Date

Thu 04/05/2023

Auction Time

11:00

Auction Venue

Livestream Auction

High-yielding seven-bedroom terraced house towards the centre of Lowestoft

This terraced house is located towards the centre of Lowestoft and comprises seven bedrooms with a shared patio to the rear. There is scope to increase this to eight bedrooms, and once modernised throughout, presents a fantastic opportunity to add value. The property is currently generating a monthly rental of £3,760pcm (£45,120 per annum), delivering a strong yield. It will be the responsibility of the successful buyer to apply for a new HMO License.

Tenure

Freehold

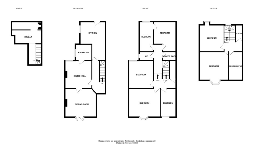
Ground Floor

Kitchen. dining room, living room, bathroom

First Floor

Four bedrooms, shower room, w.c.

Second Floor

Three bedrooms

Outside

Patio to the rear.

Council Tax Band

B

Energy Efficiency Rating (EPC)

Current Rating E

Services

Interested parties are requested to make their own enquiries to the relevant authorities as to the availability of services.

Local Authority

East Suffolk Council

Solicitors

HKB Wiltshires (Lowestoft), Ref: Philip Tuttle, Tel: 01502 582338

Important Notice to Prospective Buyers:

We draw your attention to the Special Conditions of Sale within the Legal Pack, referring to other charges in addition to the purchase price which may become payable. Such costs may include Search Fees, reimbursement of Sellers costs and Legal Fees, and Transfer Fees amongst others.

Additional Fees

Buyer's Premium - £1400 inc VAT payable on exchange of contracts.

Administration Charge - 0.3% inc VAT of the purchase price, subject to a minimum of £1200 inc VAT, payable on exchange of contracts.

Disbursements - Please see the legal pack for any disbursements listed that may become payable by the purchaser on completion.

View Larger Map

Disclaimer: The map preview provided above is for general guidance only and may not accurately reflect the exact location or surrounding buildings. Prospective buyers and interested parties are strongly advised to independently verify the precise location and surroundings before bidding.