Postponed | Lot 28

Friendly Cottage, King Street, Winterton-On-Sea, Great Yarmouth, Norfolk NR29 4AT

Postponed

  • Semi-Detached House
  • 4 Bedrooms
  • Tenure: Freehold

Call the team on 01603 505 100 for more information

Auction Date

Thu 04/05/2023

Auction Time

11:00

Auction Venue

Livestream Auction

A charming four bedroom semi detached cottage ideal holiday home or investment

This pretty semi detached cottage has been tenanted for a while but is now being sold vacant and ready for occupation by new owners as it is in excellent order throughout. The property has adaptable accommodation which could offer four bedrooms with two bathrooms or the fourth bedroom could offer an additional living room if required. The cottage is fully double glazed has central heating and has a fully fitted kitchen with built in appliances. The house would be ideal as a holiday home or permanent private residence being a short walk from the beach and village amenities.

Tenure

Freehold

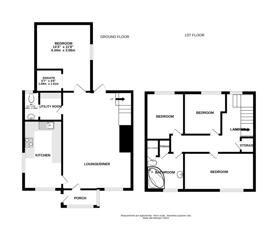
Ground Floor

Entrance lobby, lounge/dining room, kitchen, cloakroom, bedroom with en-suite shower room (possible study or dining room)

First Floor

Landing, three bedrooms, bathroom

Outside

Sheltered private courtyard style garden.

Council Tax Band

C

Viewings

Viewings are being held and the next opportunity to view is on Tuesday 18th April. Please contact the Norwich Office to book a slot

Energy Efficiency Rating (EPC)

Current Rating E

Services

Interested parties are requested to make their own enquiries to the relevant authorities as to the availability of services.

Local Authority

Great Yarmouth Borough Council

Solicitors

HKB Wiltshires (Great Yarmouth), Ref: Rachael Roll

Offered in association with

Bycroft Residential

Important Notice to Prospective Buyers:

We draw your attention to the Special Conditions of Sale within the Legal Pack, referring to other charges in addition to the purchase price which may become payable. Such costs may include Search Fees, reimbursement of Sellers costs and Legal Fees, and Transfer Fees amongst others.

Additional Fees

Buyer's Premium - £420 inc VAT payable on exchange of contracts.

Administration Charge - 0.3% inc VAT of the purchase price, subject to a minimum of £1200 inc VAT, payable on exchange of contracts.

Disbursements - Please see the legal pack for any disbursements listed that may become payable by the purchaser on completion.

View Larger Map

Disclaimer: The map preview provided above is for general guidance only and may not accurately reflect the exact location or surrounding buildings. Prospective buyers and interested parties are strongly advised to independently verify the precise location and surroundings before bidding.