For Sale By Auction | 11:00, 04 May 2023 | Lot 6

19 Fairland Street, Wymondham, Norfolk NR18 0AW

Sold £96,000

  • Hairdresser / Barber Shop
  • Tenure: Freehold

Call the team on 01603 505 100 for more information

Auction Date

Thu 04/05/2023

Auction Time

11:00

Auction Venue

Livestream Auction

A vacant shop (formally a hairdressers) now in need of updating

This period property lays close to the heart of Wymondham and has been a hairdressers for many years. The property however is now vacant and in need of full modernisation and remedial repair. The property does however have enormous scope for conversion into a wide range of alternative uses including the potential for residential conversion of the first floor.

Tenure

Freehold

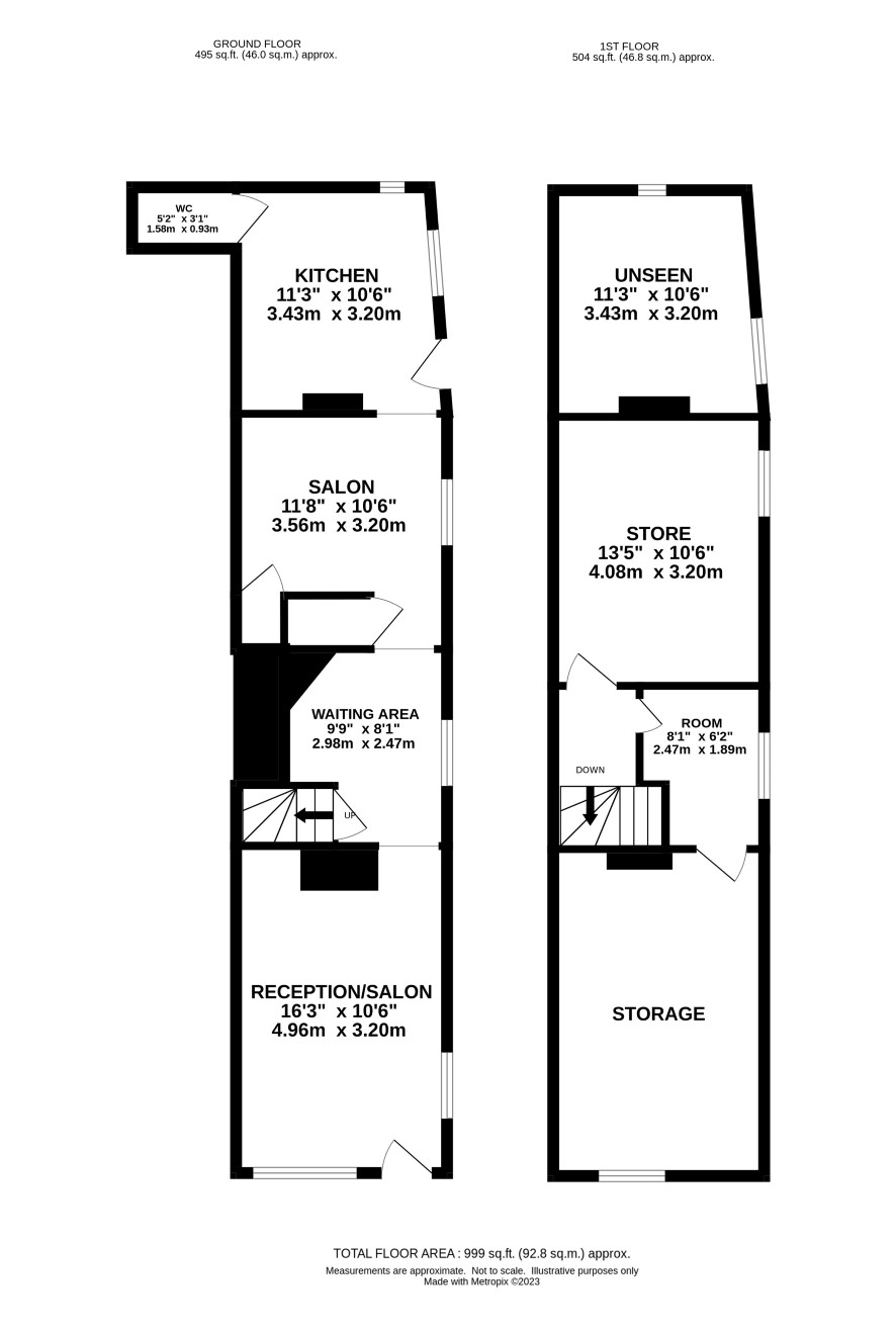
Ground Floor

Hairdressing salon, rear salon, staff room and wc

First Floor

The first floor rooms are not in use as part of the staircase has been removed, the floor does however have three rooms and an external room also currently with external access over the staff kitchen area.

Viewings

Open viewings are arranged and the next are on Tuesday, 25 and Thursday, 27 April . Please call the Norwich office to book an appointment.

Energy Efficiency Rating (EPC)

Current Rating tbc

Services

Interested parties are requested to make their own enquiries to the relevant authorities as to the availability of services.

Local Authority

South Norfolk Council

Solicitors

Cozens-Hardy LLP, Ref: Dan Evans, Tel: 01603 724676

Important Notice to Prospective Buyers:

We draw your attention to the Special Conditions of Sale within the Legal Pack, referring to other charges in addition to the purchase price which may become payable. Such costs may include Search Fees, reimbursement of Sellers costs and Legal Fees, and Transfer Fees amongst others.

Additional Fees

Buyer's Premium - £600 inc VAT payable on exchange of contracts.

Administration Charge - 0.3% inc VAT of the purchase price, subject to a minimum of £1200 inc VAT, payable on exchange of contracts.

Disbursements - Please see the legal pack for any disbursements listed that may become payable by the purchaser on completion.

View Larger Map

Disclaimer: The map preview provided above is for general guidance only and may not accurately reflect the exact location or surrounding buildings. Prospective buyers and interested parties are strongly advised to independently verify the precise location and surroundings before bidding.