Postponed | Lot 26

104 Ellough Road, Beccles, Suffolk NR34 7AG

Postponed

  • Detached Bungalow
  • 3 Bedrooms
  • Tenure: Freehold

Call the team on 01603 505 100 for more information

Auction Date

Thu 04/05/2023

Auction Time

11:00

Auction Venue

Livestream Auction

A spacious detached chalet bungalow set in delightful gardens with enormous potential

This well proportioned detached chalet bungalow has been in the same family ownership for over 50 years and is now coming to the market requiring modernisation and redecoration to realise its full potential. The bungalow, which is set in large gardens, has ample space to extend and there is a large loft area which could provide additional bedroom and bathroom space (subject to planning). The property is attractively situated in a popular market town which boasts a comprehensive range of amenities, shops and community facilities. Beccles is also well placed for access onto the Norfolk Broads and to the East Norfolk Coastline.

Tenure

Freehold

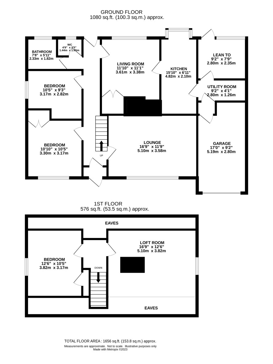
Ground Floor

Hall, lounge, dining room, kitchen, utility room, two bedrooms, bathroom, wc.

First Floor

Landing bedroom three, large loft/attic room with potential to convert to additional bedroom and bathroom space.

Outside

Front garden with generous parking area, access to attached garage with inspection pit. Large attractive and private rear garden with numerous mature trees, shrubs, lawns and vegetable garden area.

Council Tax Band

C

Viewing

Open viewings can be arranged. Our next viewing is on Monday 15 May. To book an appointment please call the Norwich office.

Energy Efficiency Rating (EPC)

Current Rating F

Services

Interested parties are requested to make their own enquiries to the relevant authorities as to the availability of services.

Local Authority

East Suffolk Council

Solicitors

Ward Gethin Archer (Dereham), Ref: Tracy Guest, Tel: 01362 852918

Offered in association with

Normove

Important Notice to Prospective Buyers:

We draw your attention to the Special Conditions of Sale within the Legal Pack, referring to other charges in addition to the purchase price which may become payable. Such costs may include Search Fees, reimbursement of Sellers costs and Legal Fees, and Transfer Fees amongst others.

Additional Fees

Buyer's Premium - £600 inc VAT payable on exchange of contracts.

Administration Charge - 0.3% inc VAT of the purchase price, subject to a minimum of £1200 inc VAT, payable on exchange of contracts.

Disbursements - Please see the legal pack for any disbursements listed that may become payable by the purchaser on completion.

View Larger Map

Disclaimer: The map preview provided above is for general guidance only and may not accurately reflect the exact location or surrounding buildings. Prospective buyers and interested parties are strongly advised to independently verify the precise location and surroundings before bidding.