Withdrawn | Lot 60

7 Loch Lane, Watton, Thetford, Norfolk IP25 6HE

Withdrawn

  • Chalet
  • 3 Bedrooms

Call the team on 01603 505 100 for more information

Auction Date

Wed 14/06/2023

Auction Time

11:00

Auction Venue

Livestream Auction

Three bedroom detached chalet with planning permission to build an additional dwelling in the garden

This non estate chalet bungalow is tucked away down an unadopted no through road and occupies a good size 0.26 acre plot. There is full planning permission in place to build a three bedroom chalet to the side of the house. It is double glazed, has oil fired central heating and is to be sold with vacant possession. It would appeal to an owner occupier or builder. It is in a sought after location around half a mile north of the town centre.

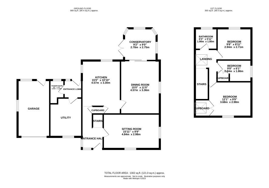
Ground floor

Entrance hall, kitchen, sitting room, conservatory, dining room, wc, utility

First floor

Landing, bathroom, three bedrooms

Outside

Off-road parking, garage, corrugated outbuilding with electricity

Planning

Full planning permission was granted by Breckland District Council on 15th April 2021 for erection of dwelling and associated works (following demolition of existing garage and subdivision of residential unit). Application number 3PL/2021/0243/F. There is also lapsed planning for a new garage / cartshed on the other side 3PL/2019/1148/HOU. Further details and plans can be found on the public access website of Breckland District Council

Council Tax Band

C

Viewings

Open viewings have been arranged and the next are on Tuesday 27 June. To book an appointment please call the Norwich office.

Energy Efficiency Rating (EPC)

Current Rating F

Services

Interested parties are requested to make their own enquiries to the relevant authorities as to the availability of services.

Local Authority

Breckland Council

Solicitors

Rudlings Wakelam (Brandon), 73 High Street, Ref: Maria Sheward, Tel: 01842 810300

Important Notice to Prospective Buyers:

We draw your attention to the Special Conditions of Sale within the Legal Pack, referring to other charges in addition to the purchase price which may become payable. Such costs may include Search Fees, reimbursement of Sellers costs and Legal Fees, and Transfer Fees amongst others.

Additional Fees

Buyer's Premium - £900 inc VAT payable on exchange of contracts.

Administration Charge - 0.3% inc VAT of the purchase price, subject to a minimum of £1200 inc VAT, payable on exchange of contracts.

Disbursements - Please see the legal pack for any disbursements listed that may become payable by the purchaser on completion.

View Larger Map

Disclaimer: The map preview provided above is for general guidance only and may not accurately reflect the exact location or surrounding buildings. Prospective buyers and interested parties are strongly advised to independently verify the precise location and surroundings before bidding.