For Sale By Auction | 11:00, 14 June 2023 | Lot 93

31 Norwich Road, Lowestoft, Suffolk NR32 2BJ

Sold £101,000

  • Terraced House
  • 3 Bedrooms
  • Tenure: Freehold

Call the team on 01603 505 100 for more information

Auction Date

Wed 14/06/2023

Auction Time

11:00

Auction Venue

Livestream Auction

A three bedroom hall entrance terrace house requiring updating

A vacant three bedroom terrace house previously tennanted but now requiring a program of updating and redecoration. The property does have a gas central heating system and double glazing and also benefits from a long rear garden. The property is ideal for investment or first-time buyer purchase being a short walk from the town centre, railway station and sea front.

Tenure

Freehold

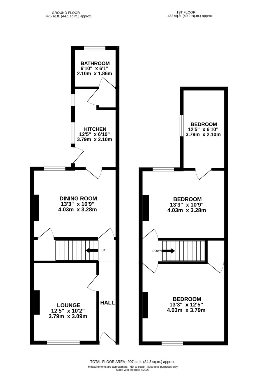
Ground Floor

Entrance hall, lounge, dining room, kitchen, bathroom.

First Floor

Landing, three bedrooms.

Outside

Small front garden, long fully fenced rear garden.

Council Tax Band

A

Viewings

Open viewings are arranged and the next are on Friday 9 June. Please call the Norwich office for an appointment.

Energy Efficiency Rating (EPC)

Current Rating D

Services

Interested parties are requested to make their own enquiries to the relevant authorities as to the availability of services.

Local Authority

Waveney District Council

Solicitors

Norton Peskett (Great Yarmouth), Ref: Matthew Breeze, Tel: 01493 849225

Important Notice to Prospective Buyers:

We draw your attention to the Special Conditions of Sale within the Legal Pack, referring to other charges in addition to the purchase price which may become payable. Such costs may include Search Fees, reimbursement of Sellers costs and Legal Fees, and Transfer Fees amongst others.

Additional Fees

Buyer's Premium - £600 inc VAT payable on exchange of contracts.

Administration Charge - 0.3% inc VAT of the purchase price, subject to a minimum of £1200 inc VAT, payable on exchange of contracts.

Disbursements - Please see the legal pack for any disbursements listed that may become payable by the purchaser on completion.

View Larger Map

Disclaimer: The map preview provided above is for general guidance only and may not accurately reflect the exact location or surrounding buildings. Prospective buyers and interested parties are strongly advised to independently verify the precise location and surroundings before bidding.