For Sale By Auction | 11:00, 14 June 2023 | Lot 69

29 Westlode Street, Spalding, Lincolnshire PE11 2AF

Sold £190,000

  • Mixed Use
  • 5 Bedrooms
  • Tenure: Freehold

Call the team on 01733 889833 for more information

Auction Date

Wed 14/06/2023

Auction Time

11:00

Auction Venue

Livestream Auction

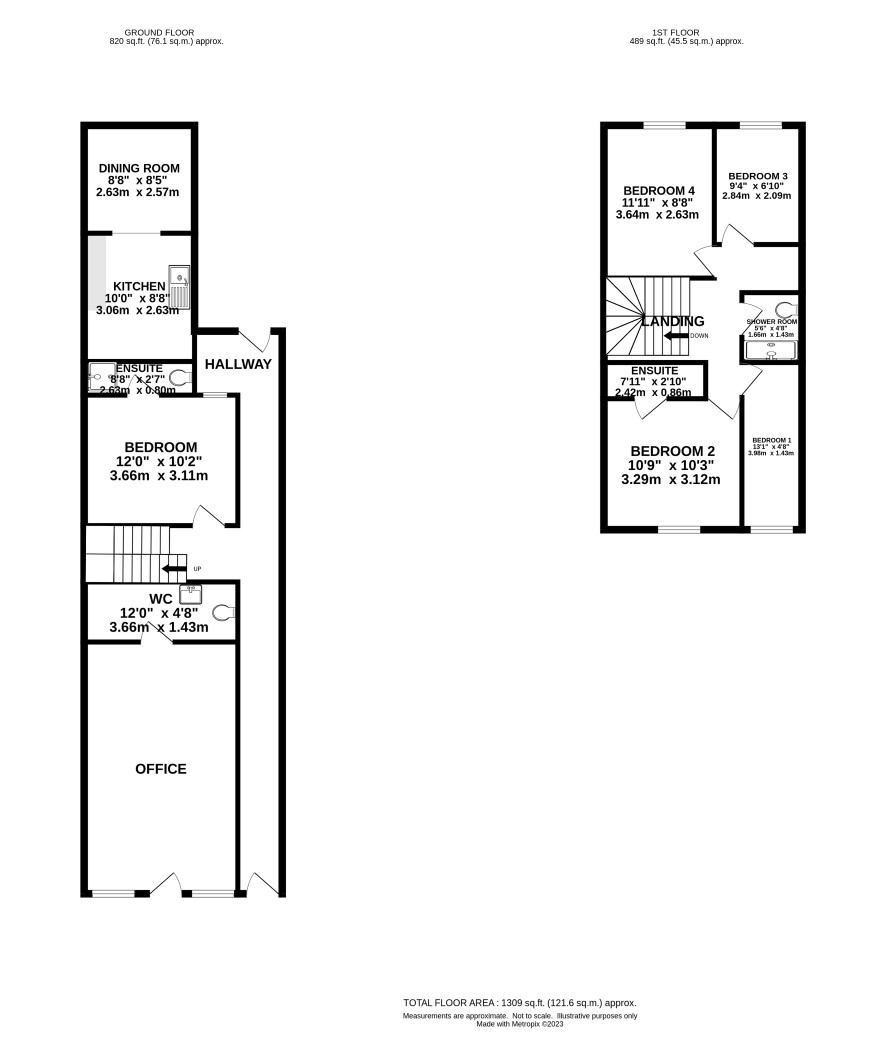
A mixed use property, office and five bedroom HMO with a total rental income of £33,696 pa

This terraced property is a mixed use unit with a five bedroom HMO and a office currently used by a rental agent with a parking space at the rear. The HMO element of the building has a kitchen, dining area and ground floor bedroom with en-suite shower and on the first floor four bedrooms and a shower room. The office has a W.C. There is a parking space at the rear and a rear yard area with a storage room. Each letting room has an electricity meter. Spalding offers shopping and recreational facilities and a rail link into Peterborough.

Tenure

Freehold

Ground Floor

Hall, kitchen, dining area, ground floor bedroom with en-suite shower. Office with separate access at the front, W.C.

First Floor

Four bedrooms and a shower room.

Outside

External storage room and yard. Parking space to the rear.

Council Tax Band

A

Energy Efficiency Rating (EPC)

Current Rating D

Services

Interested parties are requested to make their own enquiries to the relevant authorities as to the availability of services.

Local Authority

South Holland District Council

Solicitors

EHL Solicitors, Ref: Hannah Fenton, Tel: 0116 402 6688

Important Notice to Prospective Buyers:

We draw your attention to the Special Conditions of Sale within the Legal Pack, referring to other charges in addition to the purchase price which may become payable. Such costs may include Search Fees, reimbursement of Sellers costs and Legal Fees, and Transfer Fees amongst others.

Additional Fees

Buyer's Premium - £1000 inc VAT payable on exchange of contracts.

Administration Charge - 0.3% inc VAT of the purchase price, subject to a minimum of £1200 inc VAT, payable on exchange of contracts.

Disbursements - Please see the legal pack for any disbursements listed that may become payable by the purchaser on completion.

View Larger Map

Disclaimer: The map preview provided above is for general guidance only and may not accurately reflect the exact location or surrounding buildings. Prospective buyers and interested parties are strongly advised to independently verify the precise location and surroundings before bidding.