Postponed | Lot 83

Trisha's Chippy, 133 California Road, California, Great Yarmouth, Norfolk NR29 3QW

Postponed

  • Restaurant
  • Tenure: Freehold

Call the team on 01603 505 100 for more information

Auction Date

Wed 14/06/2023

Auction Time

11:00

Auction Venue

Livestream Auction

Mixed use premises incorporating a one/two bedroom cottage in need of modernisation and a long established fish and chip shop with restaurant situated close to the beach.

Well known seaside fish and chip shop which was very successfully run by the owner until their retirement in 2015 after which they decided to tenant the property, providing an income of £12,000pa. Be coming empty in December 2022 this business opportunity is offered with vacant possession and would make and would make an ideal investment or owner occupier for living and working on site. The freehold comprises of a one/two bedroom cottage is in need of some modernisation and would make an ideal holiday home with its close proximity to the beach in California, a popular holiday destination north of Great Yarmouth. The restaurant consists of a large retail area providing seating for around 30 covers and although is equipped with fryers for fish and chips could be easily adapted for other establishments (stpp). NB: The equipment and fittings are to be included within the sale. California is a popular seaside village known for an abundance of holiday chalets on a California Sands Holiday Park which is North of Great Yarmouth and 22 miles East of Norwich.

Tenure

Freehold

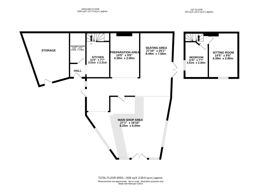
Fish and Chip shop

Take away with restaurant and preparation areas, outside store and courtyard.

Cottage

Ground Floor, entrance lobby, kitchen, shower room,. First Floor, Landing bedroom, sitting room/bedroom 2.

Viewings

Open viewings are arranged. Please call the Norwich office to book an appointment.

Energy Efficiency Rating (EPC)

Current Rating C

Services

Interested parties are requested to make their own enquiries to the relevant authorities as to the availability of services.

Local Authority

Great Yarmouth Borough Council

Solicitors

Norton Peskett (Great Yarmouth), Ref: Matthew Breeze, Tel: 01493 849225

Important Notice to Prospective Buyers:

We draw your attention to the Special Conditions of Sale within the Legal Pack, referring to other charges in addition to the purchase price which may become payable. Such costs may include Search Fees, reimbursement of Sellers costs and Legal Fees, and Transfer Fees amongst others.

Additional Fees

Buyer's Premium - £600 inc VAT payable on exchange of contracts.

Administration Charge - 0.3% inc VAT of the purchase price, subject to a minimum of £1200 inc VAT, payable on exchange of contracts.

Disbursements - Please see the legal pack for any disbursements listed that may become payable by the purchaser on completion.

View Larger Map

Disclaimer: The map preview provided above is for general guidance only and may not accurately reflect the exact location or surrounding buildings. Prospective buyers and interested parties are strongly advised to independently verify the precise location and surroundings before bidding.