Sold Prior | Lot 79

Homelea, Main Road, Ormesby, Great Yarmouth, Norfolk NR29 3LN

Sold Prior

  • Chalet
  • 3 Bedrooms
  • Tenure: Freehold

Call the team on 01603 505 100 for more information

Auction Date

Wed 14/06/2023

Auction Time

11:00

Auction Venue

Livestream Auction

Three bedroom detached chalet bungalow in tucked away sought after location

This non estate chalet bungalow was built in 1952 and is set well back from the road down a long driveway on a 0.13 acre plot. It is the first time it has come to market in nearly 40 years making it a rare opportunity. It is double glazed, has oil fired central heating and requires some modernisation to realise its full potential. It is located close to Ormesby, Rollesby and Filby Broad and is only around three miles from the coast. On instruction of executors.

Tenure

Freehold

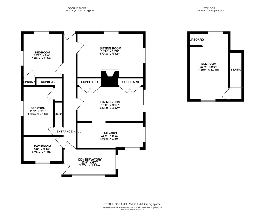
Ground Floor

Conservatory, entrance hall, sitting room, dining room, kitchen, bathroom, two bedrooms

First Floor

Bedroom

Outside

Shingle driveway providing off-road parking. Attached garage with electric. Wrap around gardens on three sides. Timber shed.

Note

We are informed the property is connected to mains electricity and water (metered) with septic tank drainage with the possibility to connect to the mains sewer via a connection point in the driveway.

Council Tax Band

C

Viewings

Open viewings have been arranged and the next are on Friday 9 June. To book an appointment please call the Norwich office.

Energy Efficiency Rating (EPC)

Current Rating E

Services

Interested parties are requested to make their own enquiries to the relevant authorities as to the availability of services.

Local Authority

Great Yarmouth Borough Council

Solicitors

Chamberlins (Great Yarmouth), Ref: Paul Ward, Tel: 01493 720019

Important Notice to Prospective Buyers:

We draw your attention to the Special Conditions of Sale within the Legal Pack, referring to other charges in addition to the purchase price which may become payable. Such costs may include Search Fees, reimbursement of Sellers costs and Legal Fees, and Transfer Fees amongst others.

Additional Fees

Administration Charge - 0.3% inc VAT of the purchase price, subject to a minimum of £1200 inc VAT, payable on exchange of contracts.

Disbursements - Please see the legal pack for any disbursements listed that may become payable by the purchaser on completion.

View Larger Map

Disclaimer: The map preview provided above is for general guidance only and may not accurately reflect the exact location or surrounding buildings. Prospective buyers and interested parties are strongly advised to independently verify the precise location and surroundings before bidding.