Postponed | Lot 66

7 Cinder Ash Lane, London Road, Long Sutton, Spalding, Lincolnshire PE12 9EA

Postponed

  • End of Terrace House
  • 2 Bedrooms
  • Tenure: Freehold

Call the team on 01553 777 773 for more information

Auction Date

Wed 14/06/2023

Auction Time

11:00

Auction Venue

Livestream Auction

A two bedroom end of terrace cottage available with vacant possession, within a short walk of Long Sutton town centre

This two bedroom end of terrace cottage is available with vacant possession and would be an ideal investment opportunity. The property is located in the market town of Long Sutton within a short walk of the town centre shopping facilities. The house benefits from lounge, kitchen, utility room, two bedrooms, bathroom, enclosed side garden, electric heating and double glazing. The small market town of Long Sutton has a good range of amenities and still holds a market every Friday in the market square.

Tenure

Freehold

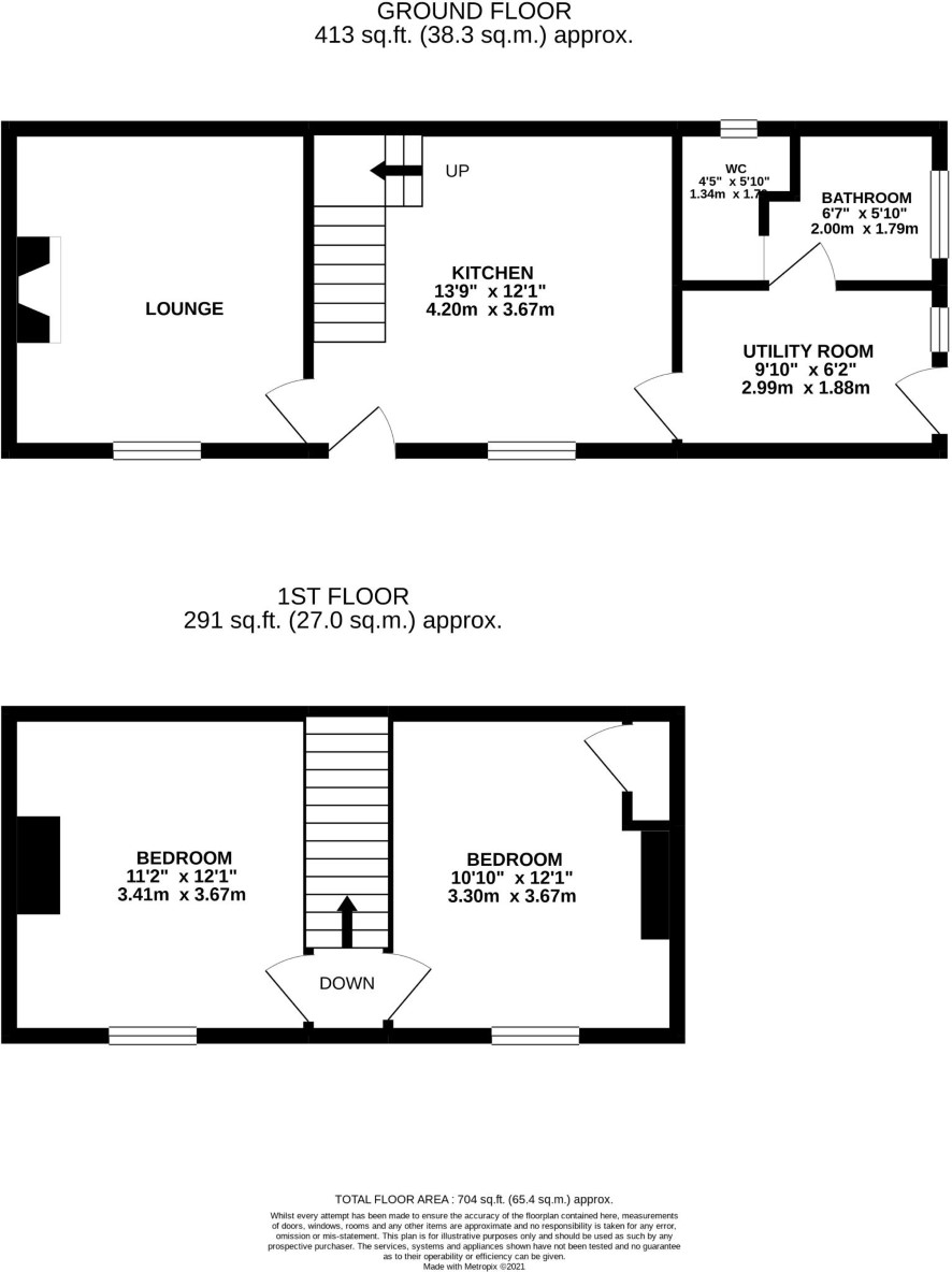
Ground Floor

Lounge, kitchen, utility room, bathroom, w.c.

First Floor

Two bedrooms

Outside

Enclosed garden

Council Tax Band

A

Energy Efficiency Rating (EPC)

Current Rating E

Services

Interested parties are requested to make their own enquiries to the relevant authorities as to the availability of services.

Local Authority

South Holland District Council

Solicitors

Bindman and Co, Ref: Claire Stanton, Tel: 0191 432 4408

Important Notice to Prospective Buyers:

We draw your attention to the Special Conditions of Sale within the Legal Pack, referring to other charges in addition to the purchase price which may become payable. Such costs may include Search Fees, reimbursement of Sellers costs and Legal Fees, and Transfer Fees amongst others.

Additional Fees

Buyer's Premium - £1200 inc VAT payable on exchange of contracts.

Administration Charge - 0.3% inc VAT of the purchase price, subject to a minimum of £1200 inc VAT, payable on exchange of contracts.

Disbursements - Please see the legal pack for any disbursements listed that may become payable by the purchaser on completion.

View Larger Map

Disclaimer: The map preview provided above is for general guidance only and may not accurately reflect the exact location or surrounding buildings. Prospective buyers and interested parties are strongly advised to independently verify the precise location and surroundings before bidding.