Postponed | Lot 57

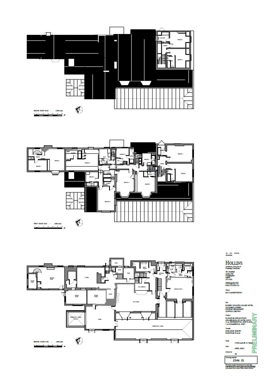
The Rosery Country House Hotel, 15 Church Street, Exning, Newmarket, Cambridgeshire CB8 7EH

Postponed

  • Hotel
  • 16 Bedrooms
  • Tenure: Freehold

Call the team on 01473 558 888 for more information

Auction Date

Wed 14/06/2023

Auction Time

11:00

Auction Venue

Livestream Auction

A substantial former country house hotel set in over 3/4 of an acre.

The Rosery is a high profile 'landmark' property set in the heart of this pretty village which is just a couple of miles from Newmarket and has easy access to the A14. The property has a C1 classification but also includes a Coach House on a separate Title which is residential and is a converted Victorian manor dating back to the 1800s, the accommodation offers function rooms, a commercial kitchen and 16 bedrooms within the main and garden buildings. Now in need of full refurbishment, the property offers scope to restore to its former glory within the leisure industry or convert for alternative use (STPP) and drawings for a mixed use scheme incorporating 11 apartments are available within the online Legal Pack. Drawings for a 15 unit Aparthotel proposal are also being prepared. An exciting project for a discerning major developer.

Tenure

Freehold

Energy Efficiency Rating (EPC)

Current Rating C

Services

Interested parties are requested to make their own enquiries to the relevant authorities as to the availability of services.

Local Authority

West Suffolk Council

Solicitors

Eversleys, Ref: Stuart Appleman

Important Notice to Prospective Buyers:

We draw your attention to the Special Conditions of Sale within the Legal Pack, referring to other charges in addition to the purchase price which may become payable. Such costs may include Search Fees, reimbursement of Sellers costs and Legal Fees, and Transfer Fees amongst others.

Additional Fees

Buyer's Premium - 0.6% inc VAT of the purchase price, payable on exchange of contracts.

Administration Charge - 0.3% inc VAT of the purchase price, subject to a minimum of £1200 inc VAT, payable on exchange of contracts.

Disbursements - Please see the legal pack for any disbursements listed that may become payable by the purchaser on completion.

View Larger Map

Disclaimer: The map preview provided above is for general guidance only and may not accurately reflect the exact location or surrounding buildings. Prospective buyers and interested parties are strongly advised to independently verify the precise location and surroundings before bidding.