For Sale By Auction | 11:00, 14 June 2023 | Lot 10

561 Earlham Road, Norwich, Norfolk NR4 7TF

Sold £350,000

  • Semi-Detached House
  • 3 Bedrooms
  • Tenure: Freehold

Call the team on 01603 505 100 for more information

Auction Date

Wed 14/06/2023

Auction Time

11:00

Auction Venue

Livestream Auction

Established semi-detached house situated on Earlham Road in need of some updating

Substantial semi-detached house situated in a prominent position on Earlham Road, close to the University of East Anglia. This extended property is in need of some updating and would offer a great conversion for a student let subject to necessary approval. Offering five ground floor rooms and three bedrooms on the first floor. There is also room to the side and rear of the property for potential development subject to planning permission.

Tenure

Freehold

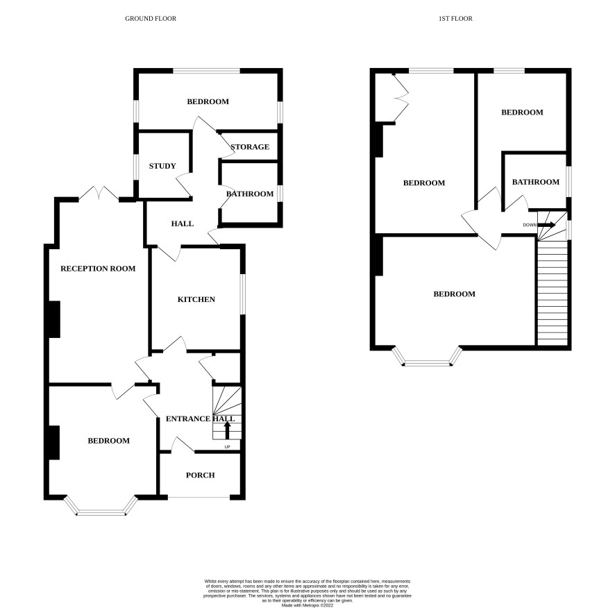
Ground floor

Hall, sitting room, dining room, summer room, study, bedroom, wet room.

First floor

Landing, three bedrooms.

Outside

Parking area leads to the front entrance with gates which open onto further parking and a single garage. The rear garden is private and is in need of some maintenance.

Council Tax Band

D

Viewings

Viewings are being arranged and the next opportunities to view are on Friday 2nd June. Please contact the Norwich office to book a slot.

Energy Efficiency Rating (EPC)

Current Rating D

Services

Interested parties are requested to make their own enquiries to the relevant authorities as to the availability of services.

Local Authority

Norfolk County Council

Solicitors

Mills and Reeve (Cambridge), Ref: Lindsey Merritt-Dunn

Offered in association with

Minors & Brady Norwich

Important Notice to Prospective Buyers:

We draw your attention to the Special Conditions of Sale within the Legal Pack, referring to other charges in addition to the purchase price which may become payable. Such costs may include Search Fees, reimbursement of Sellers costs and Legal Fees, and Transfer Fees amongst others.

Additional Fees

Buyer's Premium - £960 inc VAT payable on exchange of contracts.

Administration Charge - 0.3% inc VAT of the purchase price, subject to a minimum of £1200 inc VAT, payable on exchange of contracts.

Disbursements - Please see the legal pack for any disbursements listed that may become payable by the purchaser on completion.

View Larger Map

Disclaimer: The map preview provided above is for general guidance only and may not accurately reflect the exact location or surrounding buildings. Prospective buyers and interested parties are strongly advised to independently verify the precise location and surroundings before bidding.