For Sale By Auction | 11:00, 14 June 2023 | Lot 72

74 St. Georges Road, Beccles, Suffolk NR34 9YA

Sold £121,000

  • End of Terrace House
  • 3 Bedrooms
  • Tenure: Freehold

Call the team on 01603 505 100 for more information

Auction Date

Wed 14/06/2023

Auction Time

11:00

Auction Venue

Livestream Auction

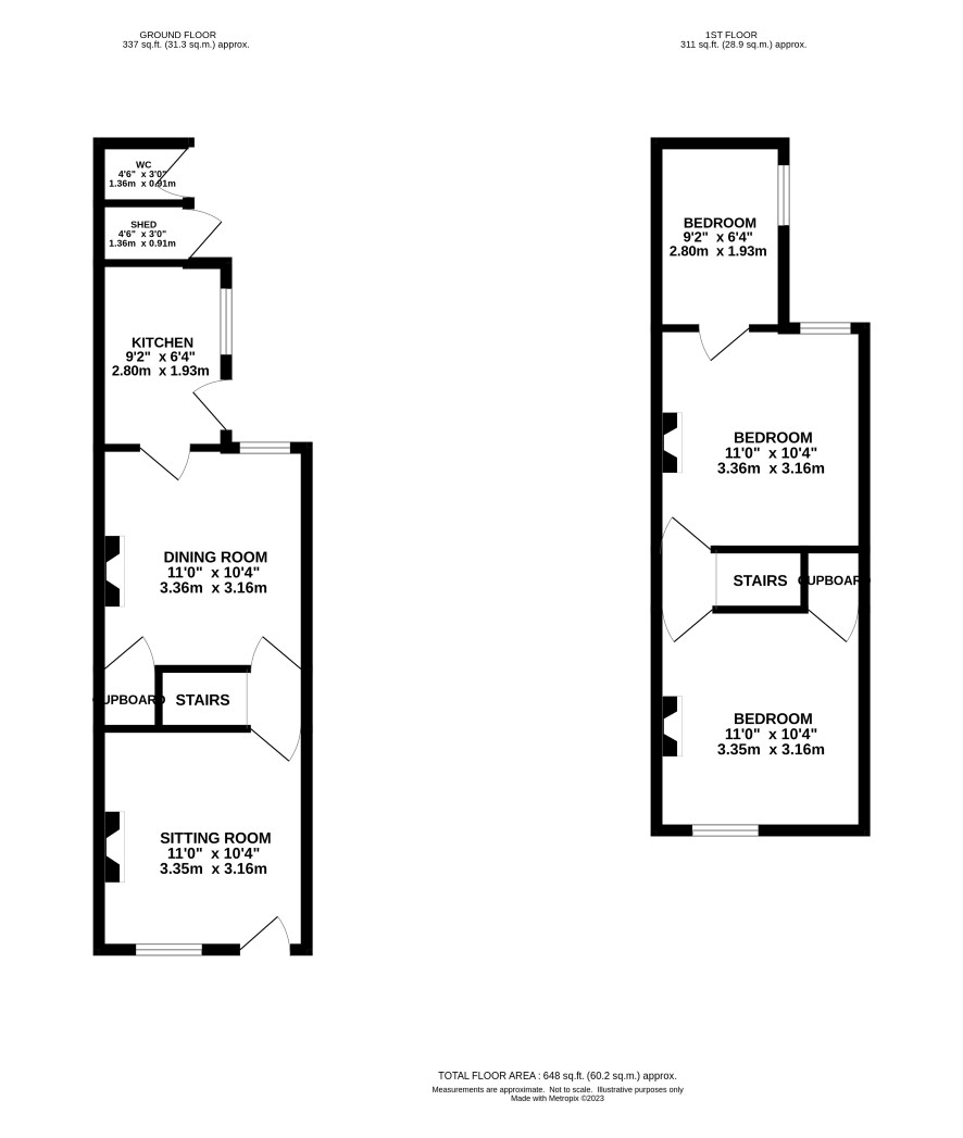
An end terraced house requiring full modernisation

Approximately three quarters of a mile from the town centre is this Victorian end terraced house with a good sized rear garden. The property requires full modernisation and currently offers two reception rooms and three bedrooms although there is no bathroom, there is also potential for off-road parking to the front (STPP). Priced particularly competitively with scope for a good profit upon resale we believe this to be an excellent project.

Tenure

Freehold

Council Tax Band

A

Viewings

Viewings have been arranged and the next are on Friday 9 June. To book an appointment to view please call the Norwich Office.

Energy Efficiency Rating (EPC)

Current Rating F

Services

Interested parties are requested to make their own enquiries to the relevant authorities as to the availability of services.

Local Authority

East Suffolk Council

Solicitors

Fairhurst Menuhin & Co, Ref: Sarah-Jane Money, Tel: 01787 827583

Important Notice to Prospective Buyers:

We draw your attention to the Special Conditions of Sale within the Legal Pack, referring to other charges in addition to the purchase price which may become payable. Such costs may include Search Fees, reimbursement of Sellers costs and Legal Fees, and Transfer Fees amongst others.

Additional Fees

Buyer's Premium - £960 inc VAT payable on exchange of contracts.

Administration Charge - 0.3% inc VAT of the purchase price, subject to a minimum of £1200 inc VAT, payable on exchange of contracts.

Disbursements - Please see the legal pack for any disbursements listed that may become payable by the purchaser on completion.

View Larger Map

Disclaimer: The map preview provided above is for general guidance only and may not accurately reflect the exact location or surrounding buildings. Prospective buyers and interested parties are strongly advised to independently verify the precise location and surroundings before bidding.