For Sale By Auction | 11:00, 26 July 2023 | Lot 23

9 King Street, King's Lynn, Norfolk PE30 1ET

Sold £329,000

  • Town House
  • 6 Bedrooms

Call the team on 01553 777 773 for more information

Auction Date

Wed 26/07/2023

Auction Time

11:00

Auction Venue

Livestream Auction

An imposing Grade II* Listed town house situated in the heart of King's Lynn Town Centre, in need of refurbishment

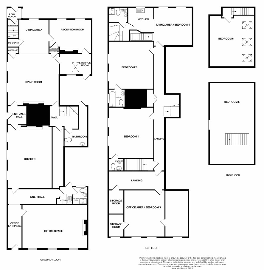
This former Medieval Merchants house is a fascinating property that is in need of refurbishment to bring it back to its former glory. The truly unique and versatile accommodation briefly comprises office/reception, kitchen, lounge, dining area, further reception room and bathroom to the ground floor, with the first floor comprising four bedrooms, three bathrooms/en-suites and a further two bedrooms on the second floor. This impressive property boasts exceptional fireplaces, wooden beams, wooden panelling and an array of period features. Private parking for three cars is located directly behind the house in the heart of the historic town. King's Lynn is a Hanseatic market town offering a full range of amenities with excellent transport links including a main line rail link into Cambridge and London King's Cross. NB. The ground floor front room has previously been used for office space.

Ground Floor

Office/reception, kitchen, lounge, dining area, further reception room and bathroom

First Floor

Four bedrooms, three bathrooms/en-suites

Second Floor

Two bedrooms

Outside

Private parking for three cars

Council Tax Band

G

Energy Efficiency Rating (EPC)

Current Rating F

Services

Interested parties are requested to make their own enquiries to the relevant authorities as to the availability of services.

Local Authority

Kings Lynn and West Norfolk Borough Council

Solicitors

Fraser Dawbarns (Kings Lynn), Ref: Melanie Egginton

Offered in association with

Millsopps

Important Notice to Prospective Buyers:

We draw your attention to the Special Conditions of Sale within the Legal Pack, referring to other charges in addition to the purchase price which may become payable. Such costs may include Search Fees, reimbursement of Sellers costs and Legal Fees, and Transfer Fees amongst others.

Additional Fees

Buyer's Premium - £1200 inc VAT payable on exchange of contracts.

Administration Charge - 0.3% inc VAT of the purchase price, subject to a minimum of £1200 inc VAT, payable on exchange of contracts.

Disbursements - Please see the legal pack for any disbursements listed that may become payable by the purchaser on completion.

View Larger Map

Disclaimer: The map preview provided above is for general guidance only and may not accurately reflect the exact location or surrounding buildings. Prospective buyers and interested parties are strongly advised to independently verify the precise location and surroundings before bidding.