Withdrawn | Lot 84

46 Double Street, Spalding, Lincolnshire PE11 2AB

Withdrawn

  • Terraced House
  • 3 Bedrooms

Call the team on 01733 889833 for more information

Auction Date

Wed 26/07/2023

Auction Time

11:00

Auction Venue

Livestream Auction

A three bedroom terraced house registered as a licenced HMO with a potential income of £17,280 pa

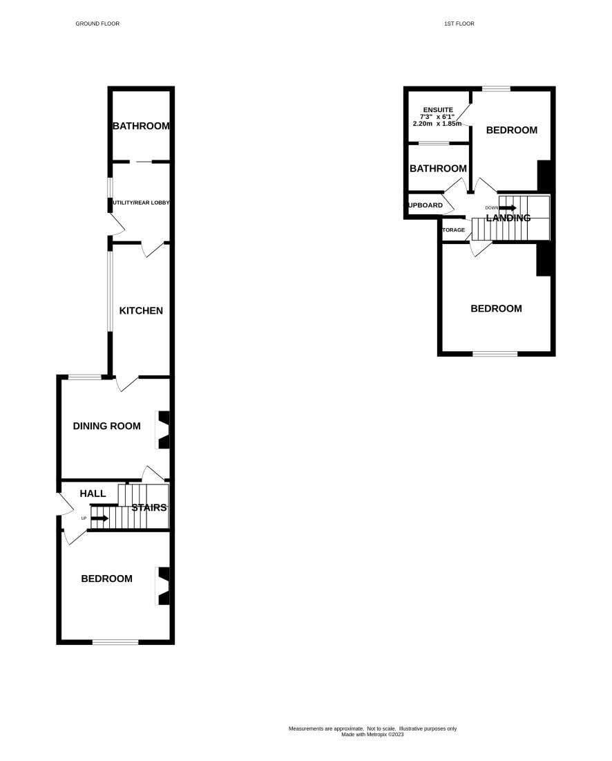
This three bedroom terraced house is registered as a licenced HMO and has a potential income of £17,280 pa. Currently one of the rooms is vacant. The accommodation comprises a ground floor bedroom, dining room, kitchen, utility, bathroom. On the first floor there are two bedrooms, one with en-suite shower and a bathroom. Spalding is located north of Peterborough and offers shopping facilities and a rail link into Peterborough.

Ground floor

Hall, bedroom, dining room, kitchen, utility room, bathroom.

First Floor

Two bedrooms, one with en-suite shower, bathroom.

Outside

Yard to rear.

Council Tax Bank

A

Energy Efficiency Rating (EPC)

Current Rating E

Services

Interested parties are requested to make their own enquiries to the relevant authorities as to the availability of services.

Local Authority

South Holland District Council

Solicitors

Bindman and Co, Ref: Claire Stanton, Tel: 0191 432 4408

Offered in association with

Sedge Homes

Important Notice to Prospective Buyers:

We draw your attention to the Special Conditions of Sale within the Legal Pack, referring to other charges in addition to the purchase price which may become payable. Such costs may include Search Fees, reimbursement of Sellers costs and Legal Fees, and Transfer Fees amongst others.

Additional Fees

Buyer's Premium - £900 inc VAT payable on exchange of contracts.

Administration Charge - 0.3% inc VAT of the purchase price, subject to a minimum of £1200 inc VAT, payable on exchange of contracts.

Disbursements - Please see the legal pack for any disbursements listed that may become payable by the purchaser on completion.

View Larger Map

Disclaimer: The map preview provided above is for general guidance only and may not accurately reflect the exact location or surrounding buildings. Prospective buyers and interested parties are strongly advised to independently verify the precise location and surroundings before bidding.