Withdrawn | Lot 87

14 High Street, Spalding, Lincolnshire PE11 1TW

Withdrawn

  • House (unspecified)

Call the team on 01733 889833 for more information

Auction Date

Wed 26/07/2023

Auction Time

11:00

Auction Venue

Livestream Auction

A Grade II listed six bedroom Georgian house in the centre of Spalding overlooking the river Welland .

This six bedroom Georgian house is a grand house and retains most of the period features and would provide a single residence with views to the front over the river Welland. The accommodation is comprises three receptions kitchen, utility, ground floor bedroom shower room and a w.c.. On the first floor a lounge, two bedrooms one with en-suite shower, bathroom and three further bedrooms on the second floor. Outside to the rear, has a terrace with two parking spaces to the side. Spalding is a market town situated between Peterborough and Boston with shopping and recreational facilities and a rail link.

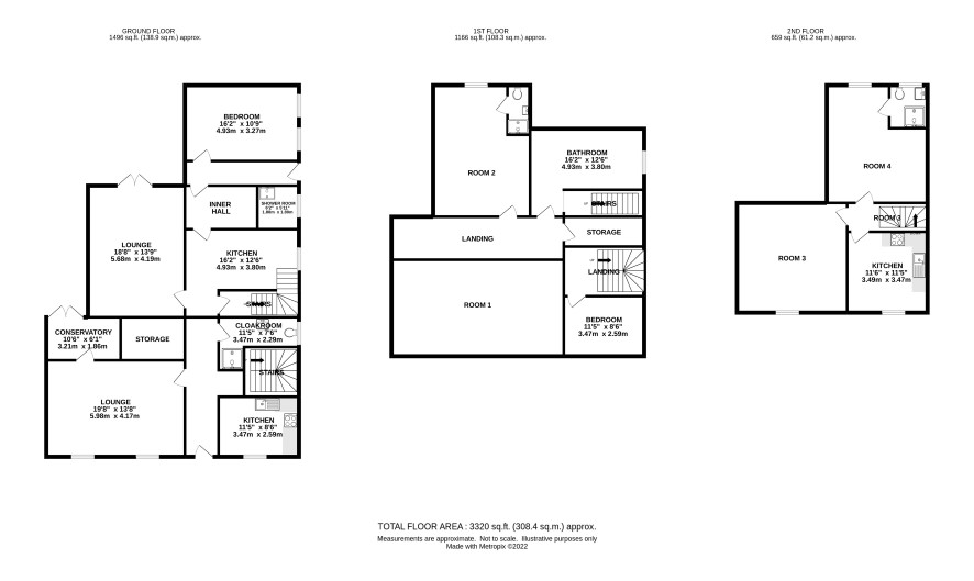
Ground Floor

Hall, lounge, dining room, kitchen, utility, ground floor bedroom, shower room, and w.c.

First Floor

First floor lounge, two bedrooms one with en-suite and a bathroom

Second Floor

Three bedrooms one with en-suite shower.

Outside

Garden to front with river frontage, two parking spaces to side and a terraced garden to rear.

Council Tax Band

E

Energy Efficiency Rating (EPC)

Current Rating E

Services

Interested parties are requested to make their own enquiries to the relevant authorities as to the availability of services.

Local Authority

South Holland District Council

Solicitors

Maples, Ref: James Turner, Tel: 01775 722261

Offered in association with

Sedge Homes

Important Notice to Prospective Buyers:

We draw your attention to the Special Conditions of Sale within the Legal Pack, referring to other charges in addition to the purchase price which may become payable. Such costs may include Search Fees, reimbursement of Sellers costs and Legal Fees, and Transfer Fees amongst others.

Additional Fees

Buyer's Premium - £600 inc VAT payable on exchange of contracts.

Administration Charge - 0.3% inc VAT of the purchase price, subject to a minimum of £1200 inc VAT, payable on exchange of contracts.

Disbursements - Please see the legal pack for any disbursements listed that may become payable by the purchaser on completion.

View Larger Map

Disclaimer: The map preview provided above is for general guidance only and may not accurately reflect the exact location or surrounding buildings. Prospective buyers and interested parties are strongly advised to independently verify the precise location and surroundings before bidding.