Sold Prior | Lot 13

14 Manor Road, Gorleston, Great Yarmouth, Norfolk NR31 0QA

Sold Prior

  • Terraced House
  • 3 Bedrooms
  • Tenure: Freehold

Call the team on 01603 505 100 for more information

Auction Date

Wed 26/07/2023

Auction Time

11:00

Auction Venue

Livestream Auction

Ready to move into recently refurbished three bedroom mid-terrace house

Located in a popular residential neighbourhood this vacant three bedroom mid-terrace property has recently been refurbished. It has new carpets and has been redecorated throughout. The property has gas central heating, is double glazed and has a well-kept front and rear garden. This lot is ideal for owner occupation, investment or first time purchase. The property is located around a mile north of the town centre close to a comprehensive range of services and amenities including the James Paget Hospital.

Tenure

Freehold

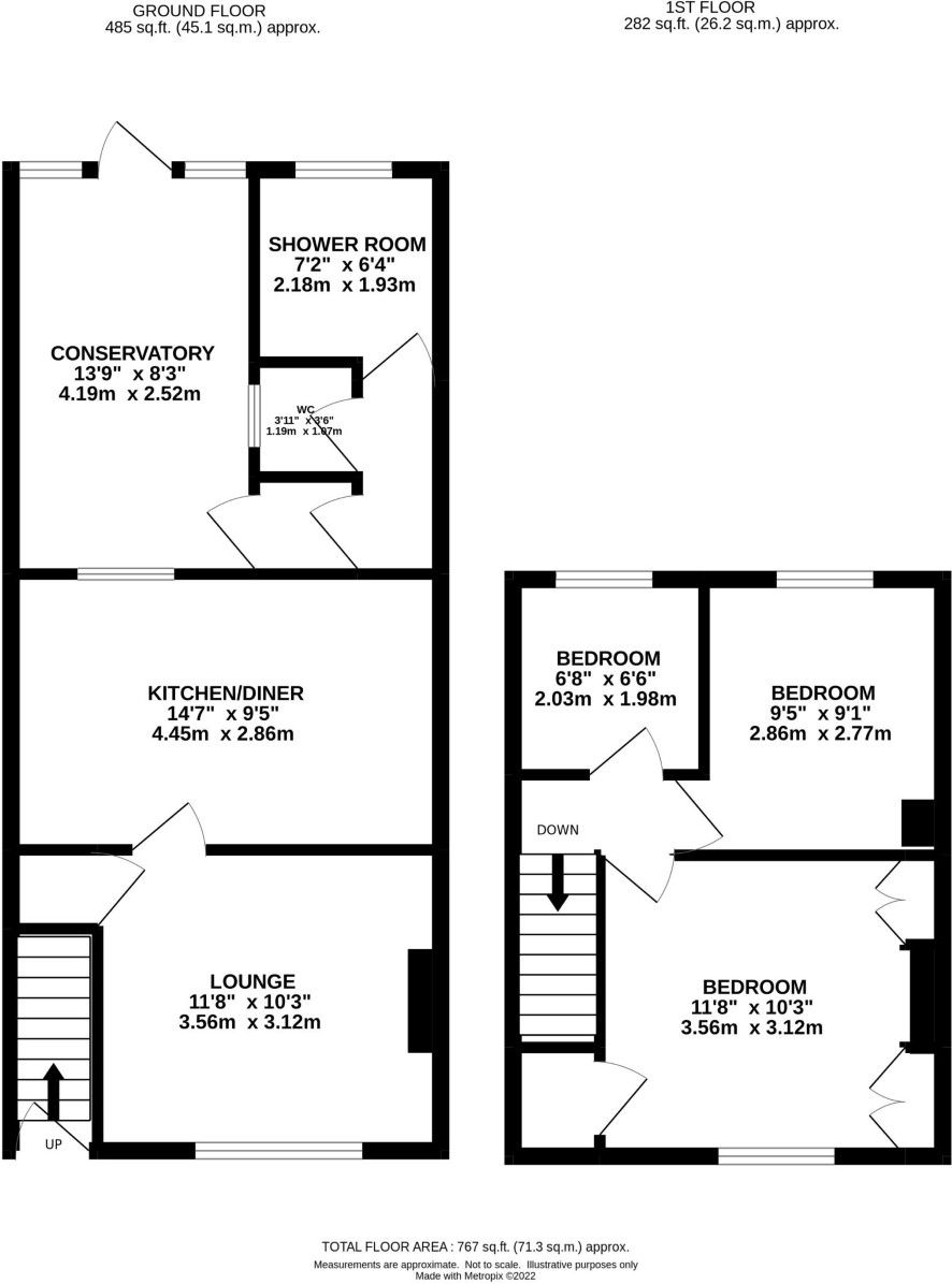
Ground floor

Entrance lobby, lounge, kitchen/diner, rear inner lobby, shower / wet room, separate wc, conservatory / garden room

First floor

Landing, three bedrooms

Outside

Front enclosed paved garden, enclosed paved and gravelled rear garden with timber shed

Council Tax Band

A

Energy Efficiency Rating (EPC)

Current Rating C

Services

Interested parties are requested to make their own enquiries to the relevant authorities as to the availability of services.

Local Authority

Great Yarmouth Borough Council

Solicitors

Howes Percival (Norwich), Ref: Joanna Nicholls, Tel: 01603 281967

Offered in association with

Darby and Liffen

Important Notice to Prospective Buyers:

We draw your attention to the Special Conditions of Sale within the Legal Pack, referring to other charges in addition to the purchase price which may become payable. Such costs may include Search Fees, reimbursement of Sellers costs and Legal Fees, and Transfer Fees amongst others.

Additional Fees

Buyer's Premium - £900 inc VAT payable on exchange of contracts.

Administration Charge - 0.3% inc VAT of the purchase price, subject to a minimum of £1200 inc VAT, payable on exchange of contracts.

Disbursements - Please see the legal pack for any disbursements listed that may become payable by the purchaser on completion.

View Larger Map

Disclaimer: The map preview provided above is for general guidance only and may not accurately reflect the exact location or surrounding buildings. Prospective buyers and interested parties are strongly advised to independently verify the precise location and surroundings before bidding.