For Sale By Auction | 11:00, 26 July 2023 | Lot 56

Trisha's Chippy, 133 California Road, California, Great Yarmouth, Norfolk NR29 3QW

Sold £116,000

  • Restaurant

Call the team on 01603 505 100 for more information

Auction Date

Wed 26/07/2023

Auction Time

11:00

Auction Venue

Livestream Auction

A popular fish and chip shop with restaurant area and adjoining cottage. Excellent for investment or owner occupation.

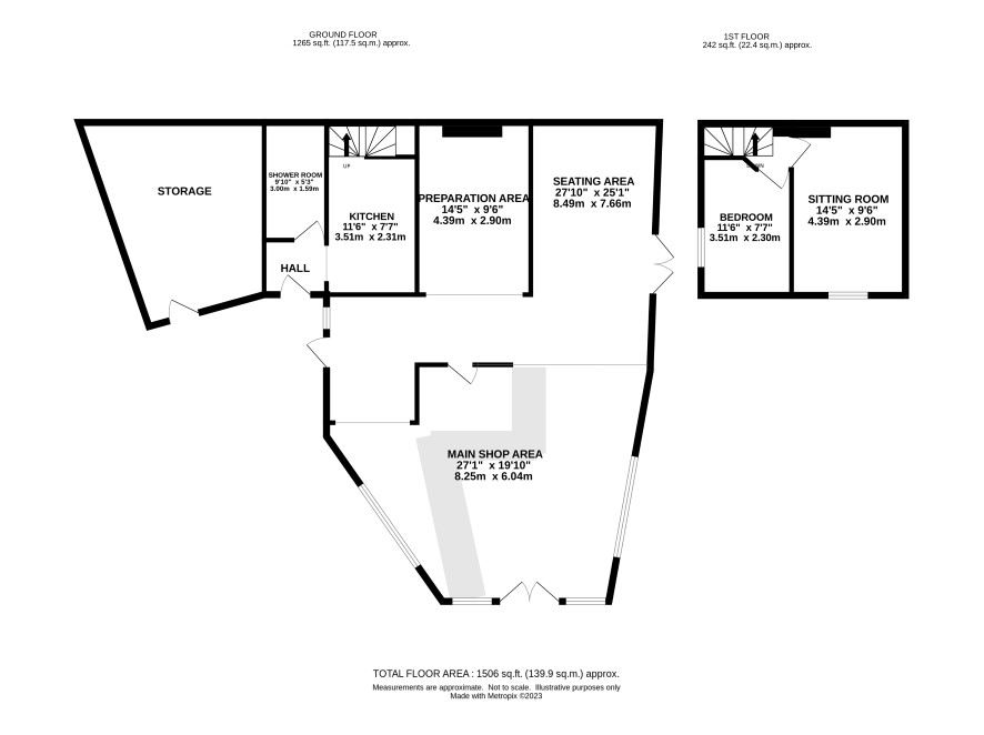
This long established and successful seaside fish and chip shop was run by the owner until their retirement, then tenanted for a short while but the freehold is now available to new investors or owner occupiers with vacant possession. The premises consist of a large retail area with potential seating area for around 30 covers. In addition there is an adjoining one/two bedroom cottage which could provide owner living accommodation or additional investment income. The equipment and fittings are to be included within the sale. The property is just a short distance from the beach and busy holiday parks. California is a popular seaside village North of Great Yarmouth and 22 miles East of Norwich.

Fish and Chip shop

Take away with restaurant and preparation areas, outside store and courtyard.

Cottage

Ground Floor, entrance lobby, kitchen, shower room,. First Floor, Landing bedroom, sitting room/bedroom 2.

Viewings

Open viewings are arranged for Tuesday 25 July. Please call the Norwich office to book an appointment.

Energy Efficiency Rating (EPC)

Current Rating C

Services

Interested parties are requested to make their own enquiries to the relevant authorities as to the availability of services.

Local Authority

Great Yarmouth Borough Council

Solicitors

Norton Peskett (Great Yarmouth), Ref: Matthew Breeze, Tel: 01493 849225

Important Notice to Prospective Buyers:

We draw your attention to the Special Conditions of Sale within the Legal Pack, referring to other charges in addition to the purchase price which may become payable. Such costs may include Search Fees, reimbursement of Sellers costs and Legal Fees, and Transfer Fees amongst others.

Additional Fees

Buyer's Premium - £600 inc VAT payable on exchange of contracts.

Administration Charge - 0.3% inc VAT of the purchase price, subject to a minimum of £1200 inc VAT, payable on exchange of contracts.

Disbursements - Please see the legal pack for any disbursements listed that may become payable by the purchaser on completion.

View Larger Map

Disclaimer: The map preview provided above is for general guidance only and may not accurately reflect the exact location or surrounding buildings. Prospective buyers and interested parties are strongly advised to independently verify the precise location and surroundings before bidding.