For Sale By Auction | 11:00, 26 July 2023 | Lot 105

81 May Road & 2 Love Road, Lowestoft, Suffolk NR32 2DJ

Sold £112,000

  • End of Terrace House

Call the team on 01603 505 100 for more information

Auction Date

Wed 26/07/2023

Auction Time

11:00

Auction Venue

Livestream Auction

Mixed use premises in need of some updating located on a corner plot in the Suffolk seaside resort of Lowestoft

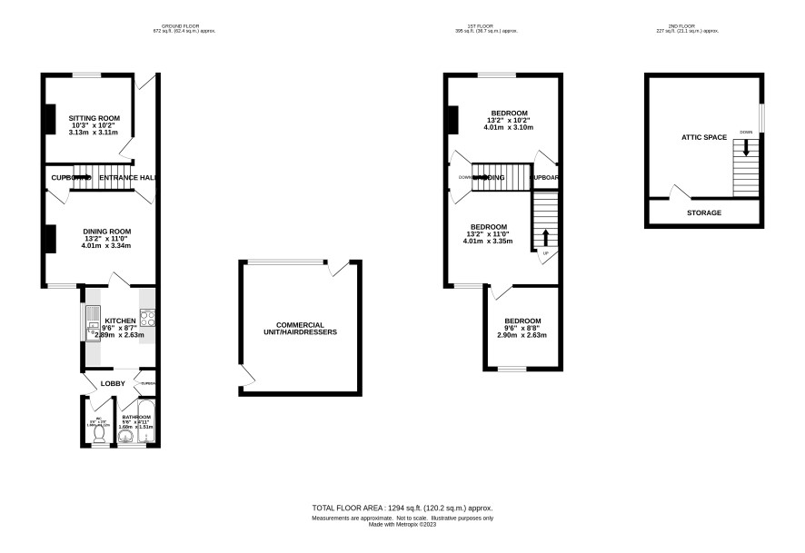
This end terraced house and commercial unit within the rear garden occupy a corner plot on May Road and Love Road with the Suffolk coastal town of Lowestoft. The property has been occupied by the current owners for over 45 years and they have traded as a hairdresser from the property for this period. Time to retire to pastures new this property offers an ideal opportunity for someone looking for a work from home business and although some modernisation is required it is in good order throughout. The property has access to the loft via a staircase offering a useful attic space.

Ground floor

Hall, sitting room, dining room, kitchen, rear hall, bathroom and separate w.c.

First floor

Landing, two double bedrooms with third bedroom leading of the rear bedroom. Staircase to attic.

Second floor

Attic storage with eaves storage cupboard

Exterior

Enclosed gated front garden with access to the house. Courtyard to the rear with gated access to Love Road and the commercial premises.

Council Tax

A

Energy Efficiency Rating (EPC)

Current Rating E, C

Services

Interested parties are requested to make their own enquiries to the relevant authorities as to the availability of services.

Local Authority

East Suffolk Council

Solicitors

Ward Gethin Archer (Dereham), Ref: Tracy Guest, Tel: 01362 852918

Important Notice to Prospective Buyers:

We draw your attention to the Special Conditions of Sale within the Legal Pack, referring to other charges in addition to the purchase price which may become payable. Such costs may include Search Fees, reimbursement of Sellers costs and Legal Fees, and Transfer Fees amongst others.

Additional Fees

Buyer's Premium - £960 inc VAT payable on exchange of contracts.

Administration Charge - 0.3% inc VAT of the purchase price, subject to a minimum of £1200 inc VAT, payable on exchange of contracts.

Disbursements - Please see the legal pack for any disbursements listed that may become payable by the purchaser on completion.

View Larger Map

Disclaimer: The map preview provided above is for general guidance only and may not accurately reflect the exact location or surrounding buildings. Prospective buyers and interested parties are strongly advised to independently verify the precise location and surroundings before bidding.