Withdrawn | Lot 95

80 Garfield Road, Great Yarmouth, Norfolk NR30 4JX

Withdrawn

  • Terraced House
  • 3 Bedrooms
  • Tenure: Freehold

Call the team on 01603 505 100 for more information

Auction Date

Wed 26/07/2023

Auction Time

11:00

Auction Venue

Livestream Auction

Partially renovated generous hall entrance mid-terrace property situated in a popular residential area of Great Yarmouth

This three bedroom mid-terrace house is owner occupied and has recently undergone some updating. The project is in need of completing and for someone to make the finishing touches. The property benefits from an entrance lobby and a generous through lounge/diner as well as a kitchen and cloakroom on the ground floor with the three bedrooms and the bathroom on the first floor. The property is double glazed and has gas fired central heating. Garfield Road is located in a popular residential neighbourhood within walking distance of local shops, schools and other community facilities.

Tenure

Freehold

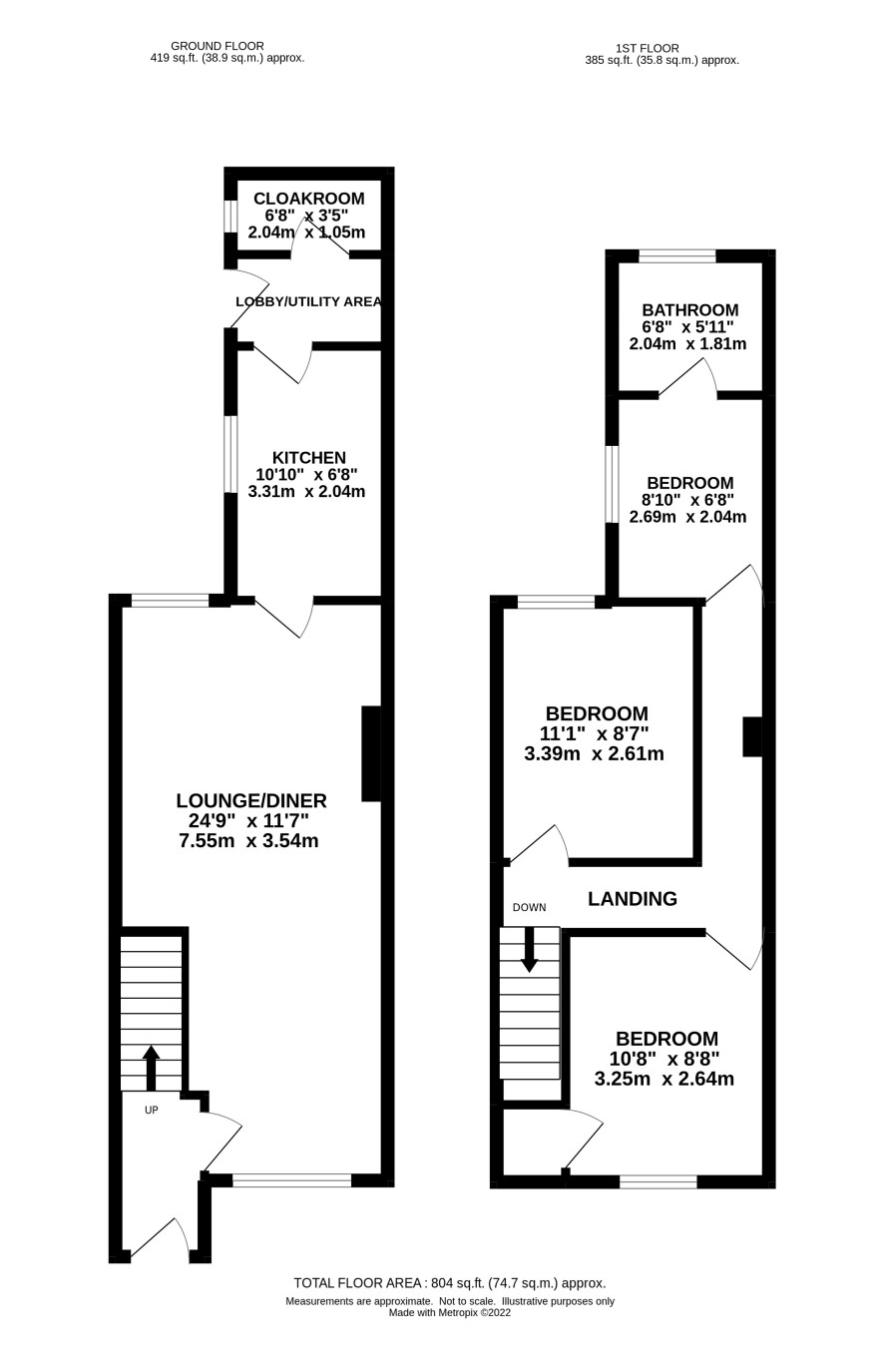
Ground floor

Entrance lobby, generous open plan lounge/diner, kitchen, utility

First floor

Landing, three bedrooms with bathroom leading off the rear

Exterior

Enclosed front garden leading to front entrance, whilst to the rear there is gated access to a small concrete back yard.

Council Tax Band

A

Viewings

Open viewings are arranged for Wednesday 9 August. To book an appointment please call the Norwich office.

Energy Efficiency Rating (EPC)

Current Rating C

Services

Interested parties are requested to make their own enquiries to the relevant authorities as to the availability of services.

Local Authority

Great Yarmouth Borough Council

Solicitors

Lucas and Wyllys (Great Yarmouth), Ref: Julie Garrod, Tel: 01493 855555

Important Notice to Prospective Buyers:

We draw your attention to the Special Conditions of Sale within the Legal Pack, referring to other charges in addition to the purchase price which may become payable. Such costs may include Search Fees, reimbursement of Sellers costs and Legal Fees, and Transfer Fees amongst others.

Additional Fees

Buyer's Premium - £960 inc VAT payable on exchange of contracts.

Administration Charge - 0.3% inc VAT of the purchase price, subject to a minimum of £1200 inc VAT, payable on exchange of contracts.

Disbursements - Please see the legal pack for any disbursements listed that may become payable by the purchaser on completion.

View Larger Map

Disclaimer: The map preview provided above is for general guidance only and may not accurately reflect the exact location or surrounding buildings. Prospective buyers and interested parties are strongly advised to independently verify the precise location and surroundings before bidding.