Postponed | Lot 38

The Gull Inn, Loddon Road, Framingham Pigot, Norwich, Norfolk NR14 7PL

Postponed

  • Restaurant
  • 4 Bedrooms

Call the team on 01603 505 100 for more information

Auction Date

Wed 26/07/2023

Auction Time

11:00

Auction Venue

Livestream Auction

Established and busy Freehold Pub/Restaurant in prominent main road position with 3/4 bedroom managers flat. Potential to expand the business.

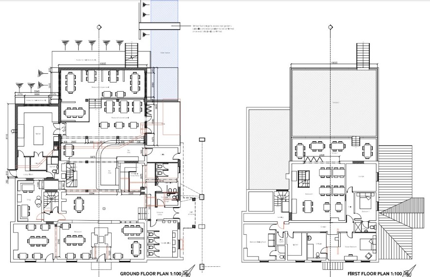
A substantial and high profile Grade ll listed pub/restaurant with a 165 cover restaurant and function room. There is a further first floor sun terrace under construction with space for an additional 40 to 50 covers once completed, making this one of the largest restaurants in the region. There are extensive gardens with seating for additional diners and a large customer car park. The property was significantly improved and extended in 2018 and includes a 3/4 bedroom managers flat. Further potential exists to build on the already busy trade, The successful weekend carvery business draws a significant local audience and also makes this a destination pub for the whole area having a fantastic reputation. The sale, which is due to retirement, allows the new buyer the opportunity to build on the existing trade and benefit from the already significant investment the current owners have made. The Gull Inn is located approximately four miles south of Norwich on the main Norwich to Lowestoft Road and draws its trade from a wide range of towns and villages within the area.

Ground Floor

Extensive dining and bar areas with numerous beams and character features, customer toilets, professional kitchen with most fittings included., cellarage and reception space.

First Floor

Further function room and access to recently constructed roof terrace and bar (minor work is required to complete the fitting and decoration). 3/4 bedroom managers flat.

Outside

Large car park, formal garden areas and rights to park in the adjoining lay by.

Accounts

Current turnover figures are available upon request.

Business Rates

Current rateable value from 1 April 2023 to present - £28,500

Council Tax Band

B

Energy Efficiency Rating (EPC)

Current Rating C

Services

Interested parties are requested to make their own enquiries to the relevant authorities as to the availability of services.

Local Authority

South Norfolk Council

Solicitors

Ward Gethin Archer (Dereham), Ref: Tracy Guest, Tel: 01362 852918

Important Notice to Prospective Buyers:

We draw your attention to the Special Conditions of Sale within the Legal Pack, referring to other charges in addition to the purchase price which may become payable. Such costs may include Search Fees, reimbursement of Sellers costs and Legal Fees, and Transfer Fees amongst others.

Additional Fees

Buyer's Premium - £1200 inc VAT payable on exchange of contracts.

Administration Charge - 0.3% inc VAT of the purchase price, subject to a minimum of £1200 inc VAT, payable on exchange of contracts.

Disbursements - Please see the legal pack for any disbursements listed that may become payable by the purchaser on completion.

View Larger Map

Disclaimer: The map preview provided above is for general guidance only and may not accurately reflect the exact location or surrounding buildings. Prospective buyers and interested parties are strongly advised to independently verify the precise location and surroundings before bidding.