Postponed | Lot 74

30, 30a & 30b Orwell Road, Felixstowe, Suffolk IP11 7DB

Postponed

  • Mixed Use

Call the team on 01473 558 888 for more information

Auction Date

Wed 26/07/2023

Auction Time

11:00

Auction Venue

Livestream Auction

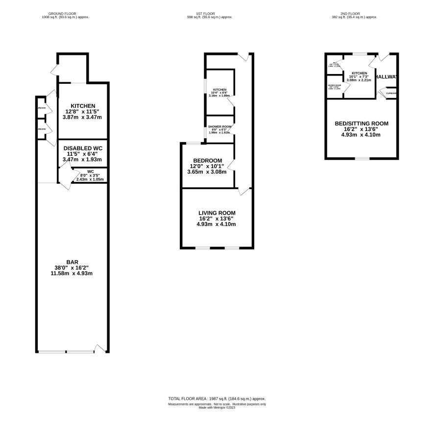
A unique opportunity to acquire a fully licensed cafe/bar with 2 flats above.

Situated in the heart of this Suffolk Coast town is this freehold licenced bar with 2 independently accessed flats above. The cafe/bar premises extends to approximately 1,000 sq/ft (93.6 sq/m) with space for around 40 covers, planning has also been approved for pavement tables and is just awaiting Highways approval. The first floor flat is newly refurbished and ready for immediate occupation either on a regular tenancy or as an Airbnb and the second floor studio flat is currently let on a periodic AST to a long-standing tenant at a current rent of £643.88 per calendar month (£7,726.56 per annum). It is considered the premises as a whole could generate a rental income of £35,000 - £40,000 per annum making this an unmissable investment opportunity.

Council Tax Bands

A, A

Energy Efficiency Rating (EPC)

Current Rating B, C, D

Services

Interested parties are requested to make their own enquiries to the relevant authorities as to the availability of services.

Local Authority

East Suffolk Council

Important Notice to Prospective Buyers:

We draw your attention to the Special Conditions of Sale within the Legal Pack, referring to other charges in addition to the purchase price which may become payable. Such costs may include Search Fees, reimbursement of Sellers costs and Legal Fees, and Transfer Fees amongst others.

Additional Fees

Buyer's Premium - 0.6% inc VAT of the purchase price, payable on exchange of contracts.

Administration Charge - 0.3% inc VAT of the purchase price, subject to a minimum of £1200 inc VAT, payable on exchange of contracts.

Disbursements - Please see the legal pack for any disbursements listed that may become payable by the purchaser on completion.

View Larger Map

Disclaimer: The map preview provided above is for general guidance only and may not accurately reflect the exact location or surrounding buildings. Prospective buyers and interested parties are strongly advised to independently verify the precise location and surroundings before bidding.