For Sale By Auction | 11:00, 13 September 2023 | Lot 92

105 Clapham Road Central, Lowestoft, Suffolk NR32 1RP

Sold £140,000

  • Terraced House
  • 3 Bedrooms
  • Tenure: Freehold

Call the team on 01603 505 100 for more information

Auction Date

Wed 13/09/2023

Auction Time

11:00

Auction Venue

Livestream Auction

A three bedroom hall entrance terrace house requiring updating

A spacious hall entrance terrace house now vacant and in need of updating. The property has sealed unit double glazing and gas central heating, there are two reception rooms, three bedrooms and a private rear garden with single garage and pedestrian access to the rear. The house would be ideal for investment or owner occupation being well placed for access to schools, town centre shops and other community facilities.

Tenure

Freehold

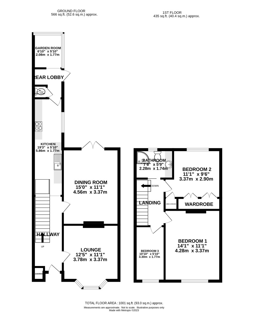
Ground Floor

Hall, lounge, dining room, kitchen, rear lobby, garden room

First Floor

Landing, three bedrooms, bathroom

Outside

Small front garden, enclosed rear garden with single garage approached from rear lane.

Council Tax Band

A

Viewing

Viewings are arranged for Tuesday 12 September. Please contact the Norwich office to book an appointment.

Energy Efficiency Rating (EPC)

Current Rating D

Services

Interested parties are requested to make their own enquiries to the relevant authorities as to the availability of services.

Local Authority

Waveney District Council

Solicitors

Nicholsons Solicitors LLP, Ref: Kate Duberley, Tel: 01603 558710

Important Notice to Prospective Buyers:

We draw your attention to the Special Conditions of Sale within the Legal Pack, referring to other charges in addition to the purchase price which may become payable. Such costs may include Search Fees, reimbursement of Sellers costs and Legal Fees, and Transfer Fees amongst others.

Additional Fees

Administration Charge - 0.3% inc VAT of the purchase price, subject to a minimum of £1200 inc VAT, payable on exchange of contracts.

Disbursements - Please see the legal pack for any disbursements listed that may become payable by the purchaser on completion.

View Larger Map

Disclaimer: The map preview provided above is for general guidance only and may not accurately reflect the exact location or surrounding buildings. Prospective buyers and interested parties are strongly advised to independently verify the precise location and surroundings before bidding.