For Sale By Auction | 11:00, 13 September 2023 | Lot 21

11 Oldbrook, Bretton, Peterborough, Cambridgeshire PE3 8SH

Sold £141,000

  • Terraced House
  • 3 Bedrooms
  • Tenure: Freehold

Call the team on 01733 889833 for more information

Auction Date

Wed 13/09/2023

Auction Time

11:00

Auction Venue

Livestream Auction

A three bedroomed terrace house with a potential rental income of £900 pcm, in the popular Bretton area of Peterborough.

The house offers a kitchen/diner, lounge and a ground floor w.c with three bedrooms and a bathroom with separate shower cubicle on the first floor. Outside there is a garden at the rear. This three bedroom terraced house is located in the Bretton area of Peterborough with its local shops and Theatre at the Bretton Centre. More extensive facilities are found in Peterborough together with a main line rail link into London Kings Cross.

Tenure

Freehold

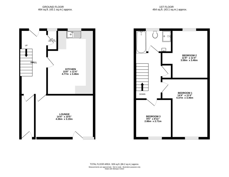
Ground Floor

Hall, w.c. lounge and a kitchen/diner.

First Floor

Landing, three bedrooms and a bathroom with separate shower cubicle.

Outside

Garden to rear.

Council Tax

A

Energy Efficiency Rating (EPC)

Current Rating C

Services

Interested parties are requested to make their own enquiries to the relevant authorities as to the availability of services.

Local Authority

Peterborough City Council

Solicitors

Buckles, Ref: Lisa Hardy, Tel: 01733 888805

Offered in association with

Pennell and Partners

Important Notice to Prospective Buyers:

We draw your attention to the Special Conditions of Sale within the Legal Pack, referring to other charges in addition to the purchase price which may become payable. Such costs may include Search Fees, reimbursement of Sellers costs and Legal Fees, and Transfer Fees amongst others.

Additional Fees

Buyer's Premium - £900 inc VAT payable on exchange of contracts.

Administration Charge - 0.3% inc VAT of the purchase price, subject to a minimum of £1200 inc VAT, payable on exchange of contracts.

Disbursements - Please see the legal pack for any disbursements listed that may become payable by the purchaser on completion.

View Larger Map

Disclaimer: The map preview provided above is for general guidance only and may not accurately reflect the exact location or surrounding buildings. Prospective buyers and interested parties are strongly advised to independently verify the precise location and surroundings before bidding.