Postponed | Lot 81

11, 13, 13a & Dobbs Yard, High Street, Chatteris, Cambridgeshire PE16 6BE

Postponed

  • Residential Development
  • Tenure: Freehold

Call the team on 01733 889833 for more information

Auction Date

Wed 13/09/2023

Auction Time

11:00

Auction Venue

Livestream Auction

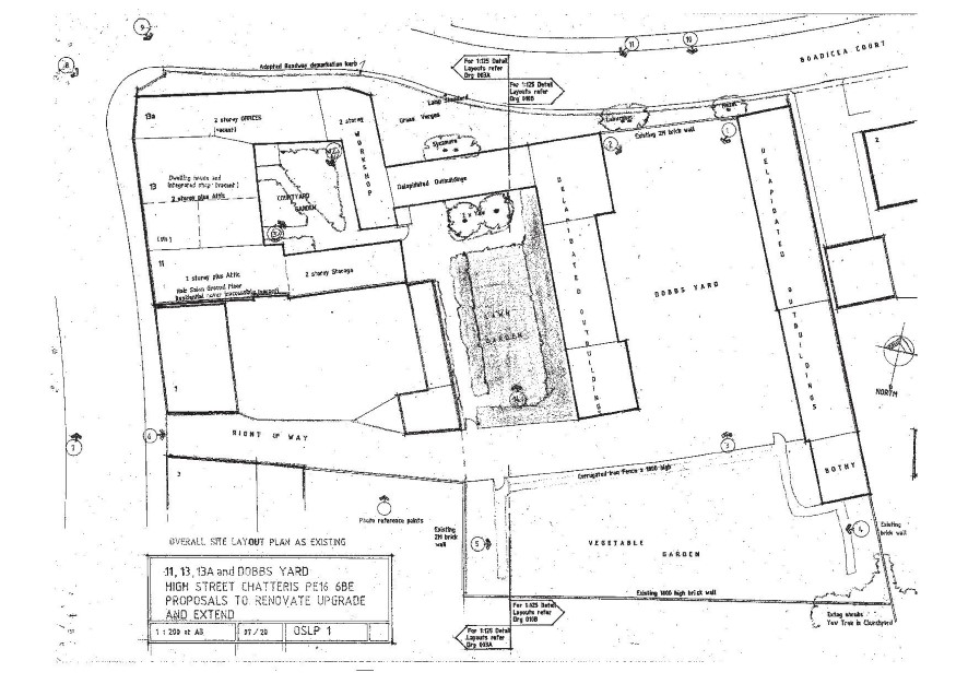
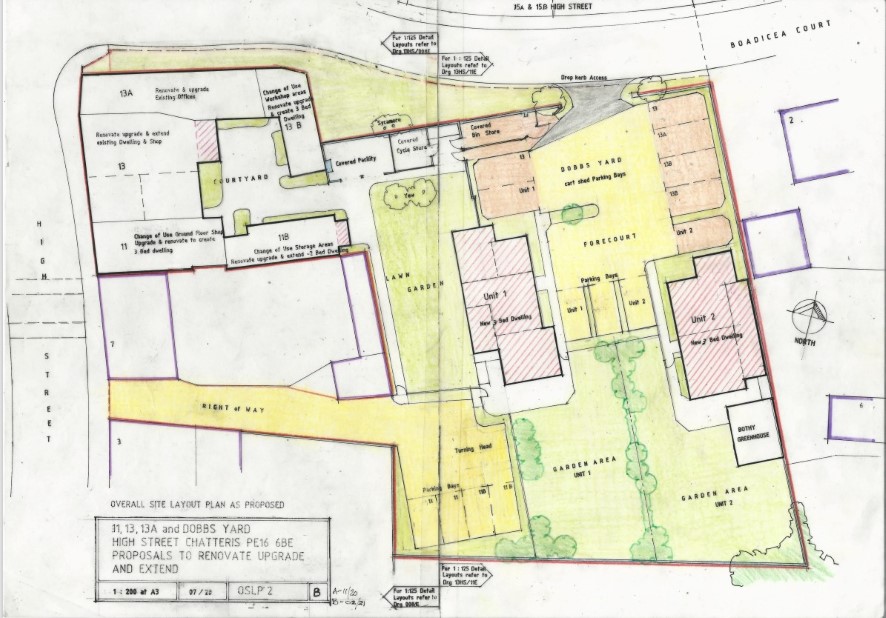
A 0.5 acre development site for four conversions including a shop, offices and two new build three bedroom properties at the rear

This development site of 0.5 acres (stms) is located in the High Street with a conversion of existing listed buildings into one four bedroom unit, two three bedroom units and a two bedroom unit, an integrated shop unit within number 13, offices with potential flat over in 13a, plus two detached three bedroom dwellings within Dobbs Yard. Planning Permission has been granted by Fenland District Council – Ref F/YR20/0780/F, plus Grade II Listed Building Consent Ref – F/YR20/0795/LB. The development includes for courtyard areas and gardens plus parking and garages. A new access has been approved by the Council and Highways on the north side into Dobbs Yard. The successful buyer will share the Overage Costs with the seller. Chatteris is a market town with a variety of shops and schools with rail links at Huntingdon, Ely and March providing connections to London and countrywide.

Tenure

Freehold

Proposed accommodation ground floor conversion

No 11 - Living /dining room, kitchen, w.c. No 11b - Living room, kitchen No 13 - Living room, kitchen, dining room/family room, integrated shop & store w.c. No 13a - Office, staff room, w.c. No 13b - Two bedrooms, shower room

Proposed first floor accommodation conversion

No 11 - Two bedrooms, bathroom No 11b - Two bedrooms, shower room No 13 - Four bedrooms, bathroom, w.c. No 13a - Office areas, w.c. (potential flat) No 13b - Living room, kitchen, bedroom, shower room

Proposed second floor conversion

No 11 - Bedroom, shower room No 13 - Attic/bedroom/storage No 13a - Boarded attic

New Houses - Ground floor

Hall, living room/dining room, kitchen, shower room and two bedrooms

New Houses - First floor

Master bedroom with en-suite

Outside

Gardens and parking.

Services

Interested parties are requested to make their own enquiries to the relevant authorities as to the availability of services.

Local Authority

Fenland District Council

Solicitors

Ward Gethin Archer (Dereham), Ref: Tracy Guest, Tel: 01362 852918

Important Notice to Prospective Buyers:

We draw your attention to the Special Conditions of Sale within the Legal Pack, referring to other charges in addition to the purchase price which may become payable. Such costs may include Search Fees, reimbursement of Sellers costs and Legal Fees, and Transfer Fees amongst others.

Additional Fees

Buyer's Premium - £1000 inc VAT payable on exchange of contracts.

Administration Charge - 0.3% inc VAT of the purchase price, subject to a minimum of £1200 inc VAT, payable on exchange of contracts.

Disbursements - Please see the legal pack for any disbursements listed that may become payable by the purchaser on completion.

View Larger Map

Disclaimer: The map preview provided above is for general guidance only and may not accurately reflect the exact location or surrounding buildings. Prospective buyers and interested parties are strongly advised to independently verify the precise location and surroundings before bidding.