Withdrawn | Lot 90

2 Wellington Road, Great Yarmouth, Norfolk NR30 3AW

Withdrawn

  • Terraced House
  • 6 Bedrooms
  • Tenure: Freehold

Call the team on 01603 505 100 for more information

Auction Date

Wed 13/09/2023

Auction Time

11:00

Auction Venue

Livestream Auction

A substantial three storey mid-terraced property recently redecorated throughout and situated close to the sea in the popular resort of Great Yarmouth

This six bedroomed property provides generous accommodation arranged over three floors. It has recently undergone redecoration throughout and would be suitable as an investment for the buy-to-let market.

Tenure

Freehold

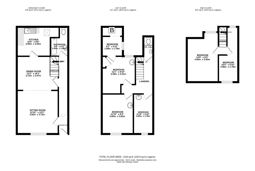
Ground Floor

Hall, lounge/diner, kitchen, bathroom

First Floor

Landing, separate w.c., three bedrooms with fourth leading off the rear bedroom, stairs to second floor

Second Floor

Landing, two further bedrooms

Council Tax Band

B

Viewing

Viewings are being held and the next opportunity to view is on 12 September. Please contact the Norwich Office to book a slot.

Energy Efficiency Rating (EPC)

Current Rating E

Services

Interested parties are requested to make their own enquiries to the relevant authorities as to the availability of services.

Local Authority

Great Yarmouth Borough Council

Solicitors

22 Law, Ref: Claire Stanton, Tel: 0191 432 4408

Important Notice to Prospective Buyers:

We draw your attention to the Special Conditions of Sale within the Legal Pack, referring to other charges in addition to the purchase price which may become payable. Such costs may include Search Fees, reimbursement of Sellers costs and Legal Fees, and Transfer Fees amongst others.

Additional Fees

Buyer's Premium - £960 inc VAT payable on exchange of contracts.

Administration Charge - 0.3% inc VAT of the purchase price, subject to a minimum of £1200 inc VAT, payable on exchange of contracts.

Disbursements - Please see the legal pack for any disbursements listed that may become payable by the purchaser on completion.

View Larger Map

Disclaimer: The map preview provided above is for general guidance only and may not accurately reflect the exact location or surrounding buildings. Prospective buyers and interested parties are strongly advised to independently verify the precise location and surroundings before bidding.