For Sale By Auction | 11:00, 13 September 2023 | Lot 15

63 East Hills Road, Norwich, Norfolk NR5 0PE

Sold £120,500

  • Terraced House
  • 3 Bedrooms
  • Tenure: Freehold

Call the team on 01603 505 100 for more information

Auction Date

Wed 13/09/2023

Auction Time

11:00

Auction Venue

Livestream Auction

A three bedroom ex local authority town house requiring modernisation

This vacant three bedroom property is of non-standard concrete sectional construction. It requires full modernisation but is an ideal property for investment being in a popular residential neighbourhood close to schools, shops and only three miles west of Norwich city centre. The property is double glazed and has gas central heating. There is off-road parking and a rear garden which also needs attention.

Tenure

Freehold

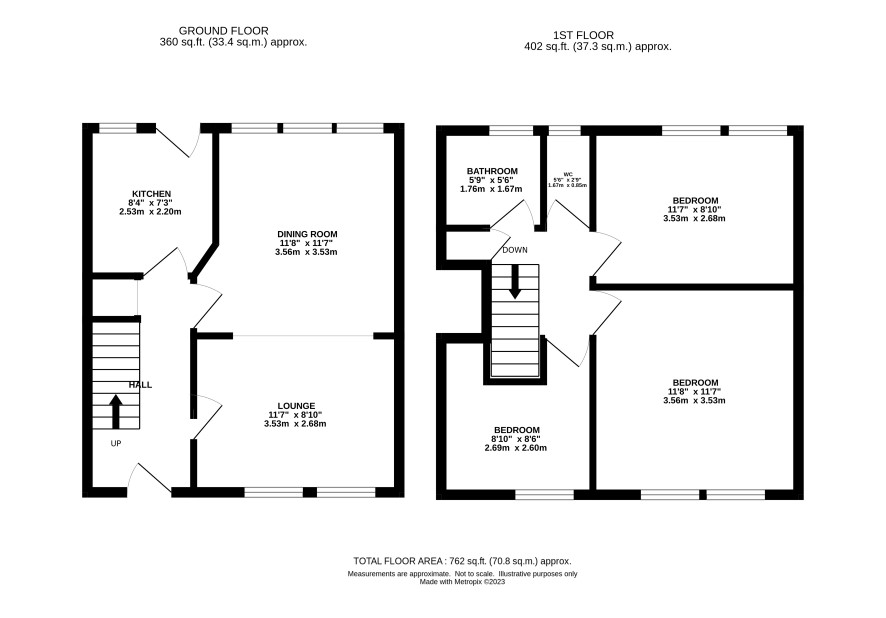
Ground Floor

Hall, lounge/diner, kitchen

First Floor

Landing, three bedrooms, bathroom.

Outside

Front garden with off-road parking area. Rear garden in need of attention.

Council Tax Band

A

Viewings

Viewings are being held by appointment. The next are Tuesday 5 and Thursday 7 September. Please contact the Norwich office to book a slot.

Notes

Cash buyers only

Energy Efficiency Rating (EPC)

Current Rating C

Services

Interested parties are requested to make their own enquiries to the relevant authorities as to the availability of services.

Local Authority

South Norfolk Council

Solicitors

Howes Percival (Norwich), Ref: Sally Rackham, Tel: 01603 284250

Important Notice to Prospective Buyers:

We draw your attention to the Special Conditions of Sale within the Legal Pack, referring to other charges in addition to the purchase price which may become payable. Such costs may include Search Fees, reimbursement of Sellers costs and Legal Fees, and Transfer Fees amongst others.

Additional Fees

Buyer's Premium - £900 inc VAT payable on exchange of contracts.

Administration Charge - 0.3% inc VAT of the purchase price, subject to a minimum of £1200 inc VAT, payable on exchange of contracts.

Disbursements - Please see the legal pack for any disbursements listed that may become payable by the purchaser on completion.

View Larger Map

Disclaimer: The map preview provided above is for general guidance only and may not accurately reflect the exact location or surrounding buildings. Prospective buyers and interested parties are strongly advised to independently verify the precise location and surroundings before bidding.